Виды полотенцесушителей
Часто в домах предусмотрено место для сушки полотенец или некоторых видов одежды, где постоянный подогрев обеспечивает быстрое устранение влаги со всего, что на нем находится. Он удобен в больших семьях с маленькими детьми, где чистые вещи требуются очень часто. А в холодное время года он служит дополнительным источником тепла. Поэтому его эффективная работа очень важна.
По виду используемой энергии выделяют несколько видов полотенцесушителей. Менее часто в домах можно встретить электрический прибор для этой функции. Он эффективен в использовании и работает от обычной электрической розетки. Установка электрического полотенцесушителя своими руками мало отличается от монтажа светильника или иного электроприбора. Но если поставить такой прибор в ванной, нужно учесть все меры пожарной безопасности. Например, сделать это так, чтобы на него не попадала вода.
Электрический полотенцесушитель
Наиболее часто в домах используют полотенцесушители, соединенные с отопительной трубой. Их принцип работы прост: горячая вода поднимается по отопительным трубам и батареям в многоэтажном здании, обеспечивая теплом всех в равной мере. А в обратную сторону эта вода спускается по трубе с множеством изгибов, образующих полотенцесушители в каждой квартире в стояке. Так обеспечивается рациональное расходование тепла.
Водяной полотенцесушитель
Так как система отопления рассчитана не на одну семью, любое изменение в ней отразится на остальных пользователях. Поэтому правильная переустановка полотенцесушителя должна быть не только эффективной в конкретной квартире, но и безопасной для остальных.
Правила монтажа водяного полотенцесушителя
Схема подключения полотенцесушителя.
Как известно, правильно установленный полотенцесушитель препятствует образованию конденсата на стенах и трубах. Помимо этого, данные отопительные приборы еще и прекрасно справляются с сыростью.
Полотенцесушитель может быть подключен к отопительной системе или же системе горячего водоснабжения. Подключение к системе отопления нецелесообразно, т.к. в данном случае устройство будет теплым только в отопительный сезон. Именно поэтому полотенцесушители чаще всего подключаются к системам горячего водоснабжения. Вода в трубах способна быстро разрушить изделие изнутри, поэтому при покупке данного оборудования следует обязательно поинтересоваться у продавца, имеют ли трубы соответствующее антикоррозионное покрытие и рассчитана ли приглянувшаяся вам модель на использование в российских условиях.
Полотенцесушитель крепится к стене с помощью кронштейнов. Удобнее всего использовать регулируемые кронштейны. Подводка к водяному змеевику может быть скрытой (замурованной в стене).
Обратите свое внимание на такую важную характеристику, как посадочное расстояние изделия. Никаких трудностей не будет, если вы делаете капитальный ремонт, т.е
полностью меняете трубопровод и прочие коммуникации. вы просто установите новые трубы и подведете к ним змеевик. Однако, если вы будете менять только полотенцесушитель, вам необходимо измерить расстояние между отводами и лишь после этого отправляться в магазин или на рынок за новым отопительным прибором.
Проводку к байпасу лучше делать из нержавеющих труб.
Статья по теме: Капитальный ремонт балкона своими руками в панельном доме: правильные рекомендации
Обязательно обратите внимание на то, чтобы диаметр патрубков нового устройства совпадал с диаметром труб горячей воды. В случае если он не будет совпадать, придется дополнительно купить специальные переходники, они продаются в любом сантехническом магазине
Специалисты рекомендуют использовать для соединения змеевика со стояковыми трубами т.н. «американку» — разъемные соединения с накидной гайкой.
Чтобы внутри агрегата не образовывались воздушные пробки, необходимо, как уже было сказано, дополнительно установить специальный спускной клапан (кран Маевского). Он должен быть установлен в верхней точке полотенцесушителя. Данная деталь позволяет избежать различных неприятных ситуаций, которые могут возникнуть при первом запуске и дальнейшем использовании оборудования.
Не экономьте и на покупке шаровых кранов, устанавливаемых на трубы горячего водоснабжения. Помимо этого, вам нужно будет сделать перемычку (байпас). Данная перемычка очень удобна, т.к. она позволяет не перекрывать воду во всем стоке, а лишь прекратить подачу воды к полотенцесушителю. Это нужно, к примеру, когда нуждаются в замене вышедшие из строя прокладки. Так, при закрытом шаровом кране вода не будет попадать в полотенцесушитель, но по системе будет циркулировать в штатном режиме.
Если вы приобрели модель с поворотным креплением, которая может поворачиваться на 180 градусов, то при установке нужно будет использовать резиновые прокладки. Будьте готовы к тому, что такие прокладки достаточно быстро выходят из строя, после чего требуют срочной замены. Выходом из данной ситуации станет установка специальных вращающихся кронштейнов — крючков над полотенцесушителем. Помимо этого, на рынке современного отопительного оборудования можно найти модели с нависающими перекладинами. Такие устройства являются более предпочтительными.
Как выбрать полотенцесушитель для ванной: его разновидности
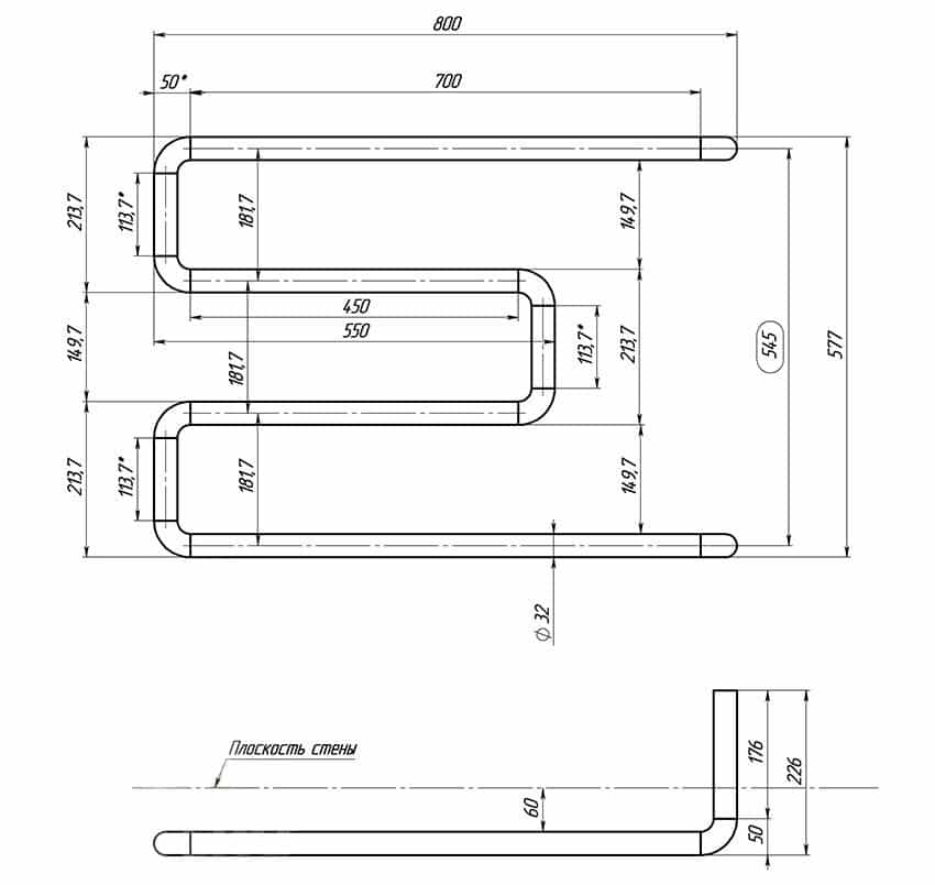
По большому счету, все существующие на сегодняшний день полотенцесушители можно разделить на две группы – водяные и электрические. И те и другие могут быть горизонтальными, изготовленными в виде традиционного змеевика, и вертикальными, представляющими собой некое подобие лесенки. О размерах существующих полотенцесушителей говорить не приходится, так как единый стандарт их изготовления давно канул в Лету – современная промышленность, кроме стандартных размеров (50см по центрам подключения), производит их в достаточно большом габаритном диапазоне. Можно встретить полотенцесушитель с размерами по центрам подводок 30, 35, 40, 45, 50, 60, 80см и даже с величинами не кратными пяти
Приобретая полотенцесушители для ванной, на этот нюанс следует обратить особое внимание, особенно если речь идет не об установке нового, а о замене старого полотенцесушителя

Как выбрать полотенцесушитель для ванной
Подходя к вопросу подключения полотенцесушителя, не грех обратить внимание и на материал, из которого они изготавливаются – как правило, их производят либо из черной стали, либо из нержавейки, либо из цветных сплавов. Для тех, кто не улавливает разницу, разъясняю – черная сталь достаточно быстро поддается воздействию коррозии, а нержавеющая сталь подвержена пагубному воздействию блуждающих токов
Для многоквартирных домов они не подходят – периодическое отсутствие горячей воды в центральных системах и жильцы-любители «шары», отматывающие электроэнергию, сокращают срок службы полотенцесушителя практически втрое. В данном случае более целесообразно осуществлять монтаж полотенцесушителей из цветных металлов (меди и латуни) – стоят они дороже, но такие капиталовложения оправданы на все 100%.

Полотенцесушитель для ванной водяной фото
То же самое периодическое отсутствие теплоносителя в центральной системе обуславливает и тип устанавливаемых полотенцесушителей. Если в ваш дом горячая вода подается исключительно в зимний период, то лучше установить электрический полотенцесушитель для ванной.

Электрический полотенцесушитель для ванной фото
Идеальным вариантом будет так называемый комбинированный вид, который может работать как от квартирной электрической проводки, так и от центральной системы отопления. К сожалению, такие сушилки не продаются, но их запросто можно изготовить самостоятельно.

Виды полотенцесушителей для ванной
Подключение полотенцесушителя из полипропилена
Монтаж устройства для сушки – кропотливая работа, требующая вашего внимания и усердия, однако работа не так сложна, с ней вы сможете справиться самостоятельно.
Шаг №1: демонтаж старого полотенцесушителя.
Перед любыми работами в ванной комнате, в обязательном порядке нужно отключить воду и остатки слить в любой сосуд.
Уберите все лишнее из помещения, подставьте под полотенцесушитель ведро или любой другой сосуд (в трубах может остаться вода). Теперь можно смело убирать старое устройство.
Шаг №2: монтаж перемычки и шаровых кранов.
Перемычка или байпас – это ваша помощь, установка которой необязательна, но желательна. Она может вас спасти в случае непредвиденной течи или другой неполадки. Чтобы не вызывать аварийные службы посреди ночи, перемычка станет для вас страховкой.
Перемычка – это специальная полипропиленовая труба, которая устанавливается в шаровые краны на концах полотенцесушителя. Эта полипропиленовая труба способствует постоянной циркуляции воды в стояке, даже когда устройство отключено.
Что нужно для покраски
Для проведения работы по покраске полотенцесушителя в ванной в максимально сжатые сроки приготовьте себе:
- наждачную бумагу;
- кисть-флейц (узкую и широкую) или валик;
- грунтовку;
- моющее средство (или растворитель);
- перчатки;
- шпатель;
- ветошь для вытирания подтеков;
- отвертку или набор.
Поскольку сушилка в процессе эксплуатации сильно нагревается, требуется особая краска для нанесения (стандартная краска для стен, пола и потолка – не подойдет, она быстро трескается и отваливается от поверхности труб).
Для покрытия радиаторов отопления и полотенцесушителей оптимальным выбором является шелковисто-глянцевая эмаль, способная выдерживать температуры до 180-220 градусов.
Основные типы красок (средняя стоимость 150-170 рублей за 1 литр):
- Алкидная эмаль – устойчива к негативным воздействиям в виде постоянных перепадов температуры. Обладает неприятным запахом, который особенно ощущается во время высыхания поверхности.
- Акриловая эмаль – красиво смотрится, распространена во многих цветовых гаммах, долговечна.
- Водно-дисперсионная краска – быстро сохнет, абсолютно безопасна для человеческого организма, длительный срок службы.

Цвет эмали выбирается под интерьер и зависит от индивидуальных пожеланий. Очень популярной является краска хром для полотенцесушителя, которая привносит в интерьер нотки шика. Также могут быть использованы оттенки под бронзу или золото – они смотрятся красиво и богато.
Красивые оттенки можно создавать с помощью краски зеленоватого, голубоватого и бежевого (розового) цвета.
Не рекомендуется использовать белую эмаль. Первое время она смотрится красиво, но через полгода эстетическая привлекательность будет утрачена. Трубы и полотенцесушитель станут бледно-желтого цвета от постоянного колебания температуры.
Какие теплоносители используются
Для водяного полотенцесушителя покупать отдельно теплоноситель не придется. Используется вода, подающаяся в трубы автоматически при работе крана или при подключении отопления.
Если решите сделать электрический полотенцесушитель своими руками, можно использовать дистиллированную воду, масло или антифриз.
Преимуществом первого варианта является дешевизна, доступность. Недостатки связаны со свойствами воды. При изменении температурного режима жидкость расширяется, что может привести к разрыву трубы. Чтобы предотвратить протечку, установите котел. Монтировать его придется отдельно.
Масло сохраняет свои свойства даже при критических температурах. Можно подобрать вариант, защищающий от коррозии. Недостатком теплоносителя считается высокая стоимость заправки системы.

Антифризы чаще используют для сушилок из металла. Такие жидкости защищают материал от коррозии, предотвращают контакт поверхности с воздухом.
Мастер-класс по изготовлению полотенцесушителя с помощью сварки ↑
Если вы обладаете навыком сварки, то сделать полотецесушитель из нержавеющей стали ля вас не представится трудным.
Изготовление полотенцесушителя ↑
Первое, что необходимо – начертить правильную схему и соблюдать правила изготовления и подсоединения к системе отопления прибора.

Схема-чертеж полотенцесушителя.
Для изготовления такого прибора, вам необходимо запастись металлическими трубами,фитингами с резьбой для присоединения к системе отопления . Естественно, для работы понадобится сварочный аппарат. Наиболее приемлемый размер трубы 32*2 мм, а подходящая длина примерно 3 м;

Наиболее подходящими, по мнению специалистов, являются трубы из латуни или нержавеющей стали, так как они долговечны и не требую дополнительной обработки.
Понадобятся и угловые отводы из нержавеющей стали такого же размера, как и трубы. Количество будет зависеть от того, сколько загибов будет иметь ваш “полотенчик”.
Угловой отвод
Поэтапно процесс можно представить следующим образом.
Трубы делают равными по длине (с помощью болгарки) .

Нарезка труб по размеру
Края отверстий обрабатываются напильником: необходимо устранить острые грани и неровности, которые могут задерживать мелкий мусор.

Шлифовка срезов труб
- К краям труб привариваются отводы.
- устанавливаются соединительные фитинги и крепежные элементы.
Фитинг “Американка” для соединения полотенцесушителя с отопительной системой

шлифовка сварных швов
Монтаж полотенцесушителя ↑
Прежде всего необходимо сделать подвод к системе горячей воды либо отопительной системе.

Подкличения полотенцесушителя к системе горячего водоснабжения.
Трубы от соединения можно спрятать под короб из гипсокартона или “утопить” в стену.

Соединение полотенцесушителя с горячим водоснабжением спрятано в короб
Подробный процесс установки полотенцесушителя можно изучить при помощи видео урока.
Монтаж полотенцесушителя
Ничего сложного в процедуре нет. В течение нескольких часов эту операцию можно проделать своими руками.
Разберем подробнее. Начинается все с демонтажа старого полотенцесушителя, если он, конечно, есть. Для этого нужно:
- перекрыть горячую воду. В многоквартирных домах ЖЭК по запросу жителей обязан выполнить эту просьбу;
- если сушитель для полотенец примонтирован по съемным схемам и не является непосредственной частью трубы с централизованной подачей теплой воды, просто откручиваем;
- если открутить невозможно по любым причинам или же труба полотенцесушителя приварена к водопроводной трубе, обрезаем. Болгарка с этой задачей справляется на ура.
После монтируем новые краны. Для этого необходимо нарезать новую резьбу (если трубу срезали) плашкой подходящего диаметры, после чего устанавливаем запирающие краны.
Следующий этап – монтаж самого полотенцесушителя. Для этого нам понадобятся фитинги. В зависимости от схемы подключения, выбираем прямые или угловые.
Соединения на резьбе изолируем и уплотняем. С этой задачей хорошо справляется льняная подмотка или же лента ФУМ для резьбовых конических соединений. Полотенцесушитель подсоединяем к фитингам, крепления затягиваем потуже, но так, чтобы резьба не повредилась.
Крепление самого полотенцесушителя к стене осуществляется с помощью специальных держателей или хомутов. Расстояние от стены до трубы полотенцесушителя неслучайно и подбирается в зависимости от диаметра трубы:
- от стены 40 мм и больше, при диаметре менее 25 мм;
- от стены от 55 мм при диаметре 50 мм.
И финальный этап – проверка боем. При первом запуске внимательно следите за протечками на стыках. Если их нет – поздравляем, все прошло успешно.
Какие теплоносители используются
Для водяного полотенцесушителя покупать отдельно теплоноситель не придется. Используется вода, подающаяся в трубы автоматически при работе крана или при подключении отопления.
Если решите сделать электрический полотенцесушитель своими руками, можно использовать дистиллированную воду, масло или антифриз.
Преимуществом первого варианта является дешевизна, доступность. Недостатки связаны со свойствами воды. При изменении температурного режима жидкость расширяется, что может привести к разрыву трубы. Чтобы предотвратить протечку, установите котел. Монтировать его придется отдельно.
Масло сохраняет свои свойства даже при критических температурах. Можно подобрать вариант, защищающий от коррозии. Недостатком теплоносителя считается высокая стоимость заправки системы.

Подключение полипропиленовой сушилки
Сначала отключите подачу воды. При необходимости демонтируйте старую сушилку. Затем подключите перемычку. Для удаления избытков воздуха установите шаровые краны. Они благотворно воздействуют на циркуляцию кипятка. Подготовьте трубы, после чего соедините их с помощью сварочного аппарата.
Затем изделие монтируют на стену. Выдерживайте при этом требуемое расстояние. На выбранный участок наносят разметку для креплений. В стене просверливают отверстия. Для проведения работ на керамической плитке выбирайте оборудование с наконечником в форме копья. Подключите сушилку к трубе. Когда будете фиксировать фитинги, позаботитесь о герметизации. Для этого воспользуйтесь нитью из льна либо ФУМ-лентой. Зафиксируйте самодельное устройство болтами, установленными на крепежных элементах.
Когда установка будет завершена, проверьте, что каждое соединение герметично. После можно подключать воду.
Какой способ выбрать?
Для того, чтобы решить, как закрыть трубы в ванной, следует учесть несколько важных обстоятельств. Прежде всего, надо помнить о том, что ничто не вечно, и иногда приходится ремонтировать сантехнику, устранять течи, укреплять слабые сварные соединения и т.д. Поэтому те участки, которые планируется спрятать в стену, должны быть новыми, без дефектов сварки или пайки, ( в идеале — без соединений), труба ХВС должна быть гидроизолирована, чтобы не допустить намокания бетона от конденсата. Кроме того, все коммуникации в ванной имеют отводы на сантехнику и запорную арматуру — вентили, шаровые краны, к которым надо обеспечить свободный доступ.

Счетчики воды потребуют еще больше места, к тому же их должно быть хорошо видно. Все эти условия могут быть соблюдены в полной мере только при строительстве, когда можно заранее спроектировать стену оптимальным образом. Готовая разводка с установленными счетчиками и прочими устройствами может быть только закрыта коробом, все иные решения потребуют демонтажа и прокладки труб по новой. Поэтому выбор способа замаскировать трубы диктуется возможностями помещения и целесообразностью выполнения сложных работ.
Подготовка к установке

Есть два варианта подключения устройства — к системе отопления или горячего водоснабжения. Комплекс работ проводится в несколько этапов.
В первую очередь нужно отключить горячее водоснабжение или отопление, все зависит от системы подключения полотенцесушителя. После того как все перекрыто можно приступить к демонтажу старого оборудования. Если на стояке установить байпас с вентилями, то это позволит перекрывать систему без отключения обшей подачи тепла или горячей воды. Также это гарантировано защитит жилище при непредвиденных аварийных ситуациях. Дополнительные шаровые краны в байпасе обеспечат беспрепятственно циркулировать воде и не завоздушит систему.
Покупая новый полотенцесушитель необходимо проверить его комплектацию, прочитать инструкцию по установке, посмотреть схему подсоединения. Проще всего поставить новое устройство на место старого. Перед тем как устанавливать полотенцесушитель необходимо иметь трубы. Они бывают нескольких видов:
Виды полотенцесушителей по принципу работы
В ванной комнате устанавливается сушка трех видов:
- водяной прибор;
- работающий от электросети;
- комбинированная модель.
Чтобы выбрать, какой сделать полотенцесушитель в ванную, нужно изучить принцип работы каждого вида.
Прибор водяного типа
Для изготовления водяного полотенцесушителя используется медь, латунь покрытая хромом, нержавейка, черная сталь, она покрывается никелем.
В приоритете использование нержавейки. Объясняется это тем, что этот материал выдерживает повышенные скачки давления воды.
Описание принципа работы водяной модели напоминает работу отопительной батареи: из главной магистрали идет подача горячей воды в радиатор. Дальше она движется по трубам конструкции сушки. В этот момент отдается тепло в комнату. В систему водоснабжения или отопления жидкость попадает по обратной трубе.

Плюсы в работе водяной модели только подтверждают правильность ее выбора:
- после установки счета по электроэнергии не возрастут, поскольку сушка не подключается к сети с электричеством;
- сама установка несложная, не требует дополнительных мер (заземления, специальных влагостойких розеток);
Самая большая проблема, с которой сталкиваются владельцы водяной конструкции, работающей от теплосети, в приостановке ее использования на неотопительный сезон.
Электрическая модель
Нагревательным элементом выступает кабель или ТЭН, которые находятся внутри радиатора. Теплоносителем выступает вода или антифриз, если внутрь вмонтирован ТЭН. Когда в трубах расположен кабель, то радиатор без жидкости. Полотенцесушитель в ванной электрического типа оснащаются терморегулятором, реостатом. Эти устройства для регулировки температурного режима внутри конструкции.
Крепятся такие модели либо на стену, либо при помощи ножек устанавливаются на пол. Для изготовления применяется разный материал, но лучшим признана нержавеющая сталь с покрытием из хрома.
Сушка работает от электроэнергии, которая поступает на нагревательный элемент. Теплоносителем выступает жидкость внутри труб. ТЭНами она подогревается до 60 оС,70 оС. Удерживается уровень подогрева при помощи ТЭНов, или с помощью дополнительных приборов, о которых говорилось выше.
Что важно учитывать при установке данного приспособления?
В многоквартирных домах подключение полотенцесушитель осуществляется путем внедрения в систему горячего водоснабжения. Простым языком, он выступает в роли компенсирующей петли трубопровода.
Неправильно выполненная врезка способна сократить теплоотдачу и нарушить горячее водоснабжение во всем многоэтажном доме.
Современные зарубежные модели не предусмотрены для присоединения в общую систему водоснабжения. Опытные специалисты рекомендуют выбирать отечественные виды сушки для полотенцев. Они разработаны с учетом государственных стандартов.
Если в доме проведена пластмассовая система трубопровода, то в этом случае можно использовать разные виды материалов в процессе монтажных работ.
Комбинированное устройство будет функционировать круглый год. Оно подключается к центральной системе отопления и регулируется датчиком нагрева воды. Увеличить мощность устройства можно при помощи диагонального или вертикального способа подключения.
Общие требования к установке
Установка полотенцесушителя с «водяным» принципом действия выполняется с соблюдением ряда условий:
№1. Диаметр труб устройства должен соответствовать диаметру стояка, недопустимы сужения от установленных фитингов.
№2. Между отводами сушки необходимо предусмотреть перемычку. Байпас выполняет ряд задач:
- сохранение скорости циркуляции воды по всему стояку;
- разделение потоков теплоносителя позволяет сохранять тепло для последующих точек водозабора;
Веский плюс включения замыкающих участков, байпасов, заключается в возможности отключения полотенцесушителя для проведения ремонта без остановки работы системы в целом.
№3. Запрещена установка запорной арматуры на участке трубопровода до байпаса и непосредственно на перемычке.
Несоблюдение требования влечет за собой:
- замедление циркуляции воды по стояку и падение температуры теплоносителя;
- ухудшение напора в квартирах, расположенных по направлению подачи воды.
Замыкающие участки могут быть оборудованы привычными шаровыми вентилями на байпасе и магистрали подачи или более функциональными трехходовыми кранами, позволяющими направлять теплоноситель или в байпас, или в радиатор.
№4. Рекомендуемая высота размещения сушки для полотенец согласно СНиП – 120 см от пола.
№5. Предельные дистанции между отопительным прибором и облицовкой стен:
- 3,5-4 см – если диаметр змеевика 2,5 см и меньше;
- 5-7 см – при сечении труб более 2,5 см.
Если в монтажной схеме предусмотрен байпас, то на выходе и на входе прибора допустима установка отсечных шаровых кранов.
Использование байпаса в схеме отопления позволяет разделять общий поток теплоносителя на две части. Одна из частей поступает в батарею, другая поставляется следующим приборам, благодаря чему все радиаторы получают теплоноситель практически той же температуры, что и первый (+)
Как устроен байпас и для чего он нужен?
Это небольшая труба-перемычка с вентилем, расположенная между водопроводом или системой отопления и запорными кранами. При необходимости отключить полотенцесушитель в будущем, краны по его бокам закрываются, а тот, что находится на перемычке, открывается. Вода в сушилку полотенец перестает поступать, но при этом ремонтные работы в отдельной квартире не мешают жить соседям и купаться в ванне в панельном доме.
Если есть возможность установить байпас, его надо устанавливать, даже при установке полотенцесушителя на горячую воду с последовательным подключением. В этом случае можно отключить сушилку, если станет слишком жарко.

Байпас — удобное устройство, если вы хотите отключить полотенцесушитель




































