Пиролизный котел своими руками: правила и нюансы
Пиролизный котел своими руками Для того, чтобы установить пиролизный котел своими руками, сохраняя при этом все его рабочие качества, необходимо основываться на точный чертежах и вычислениях. Неправильно собранный котел, смонтированный по некомпетентной схеме, не только будет плохо выполнять свои функции, но еще и представит угрозу безопасности окружающей среде и Вам в первую очередь.
Правила сборки пиролизного котла своими руками:
- Вашей первоочередной задачей, перед стартом сборки, становится обязательное ознакомление с чертежами, планами и схемами. Они помогут определить количество необходимого материала для работы, а также уберегут Вас от возможных аварийных ситуаций;
- Проверьте наличие основополагающих элементов, без которых невозможна собственноручная сборка пиролизного котла. Это: регуляторы, отверстия для воздуха, дымовые каналы, трубы для отвода воды, камера сгорания, трубы для подачи воды, а также вентилятор;
- Учтите, что если Вы предполагается отапливать стандартный загородный дом, Вам вполне подойдет пиролизный котел мощностью 40 кВт, а если Вы владелец совсем небольшого коттеджа, то хватит и 30 кВт-ного котла. Устанавливать супер мощные котлы нет смысла, так как и небольшое устройство, прекрасно утеплит помещения, в то время как огромные агрегаты будут стоить больших денег, и потребуют значительных затрат;
- Не лишним будет заготовка необходимых инструментов для монтажа котла. Чтобы Вам не пришлось лишний раз бегать в строительный магазин, приготовьте все нужное сразу. Для установки пиролизного котла своими руками, Вам потребуется вот такой вот инструментарий: болгарка, шлифовальные круги, сварочный аппарат, электрическая дрель, трубы различного диаметра электроды, вентилятор, полосы стали, термодатчик, металлические листы
Учтите, что сборка пиролизного котла своими руками долгий и кропотливый процесс, поэтому будьте готовы к возможным сложностям. Однако, тщательно подготовившись к процессу, Вы значительно снижаете риск возникновения неожиданных проблем.
После того, как все правила соблюдены, нужная схема выбрана, пора приступать к непосредственной сборке. Поэтапно собирая устройство, следите за выполнением следующих нюансов:
- В отличие от обычных котлов, отверстие для помещения дров в топку, должно быть расположено несколько выше;
- Обязательно проверьте наличие ограничителя, который фиксирует подачу воздуха в котел. Его оптимальные размеры – 70 мл в сечении и длина, превышающая размеры корпуса;
- Диск, привариваемый к ограничителю, должен быть изготовлен из нержавеющей стали, и располагаться внизу всей конструкции;
- Отверстие для подачи твердого топлива лучше всего желать прямоугольной формы. Для пиролизного котла такая форма является оптимальной;
- Дверца должна плотно и надежно закрываться, необходима специальная накладка, которая будет плотно фиксировать закрытие;
- Заранее предусмотрите, а затем не забудьте выполнить специальное отверстие, с помощью которого Вы будете удалять накопившуюся золу;
- Труба для теплоносителя должная быть не прямой, а слегка изогнутой. Такая форма необходима для повышения теплоподачи;
- Расположение вентиля должно быть удобным и доступным. Благодаря нему Вы будете контролировать процесс поступления воздуха в топку;
- Первый запуск. После того, как вы закончили сборку и монтаж пиролизного котла своими руками, проведите пробный запуск устройства. При помощи специального оборудования, проверьте безошибочность эксплуатации на всех этапах, и убедитесь, что в котле не скапливается угарный газ. Только после этого, можно полноценно вводить котел в работу
Пиролизные котлы длительного горения с водяным контуром

Пиролизные котлы длительного горения с водяным контуром являются прекрасным альтернативным источником энергии в частных домах в условиях частых перебоев газоснабжения.
Котел твердотопливный длительного горения с водяным контуром может работать на дровах и на других видах твердого топлива: уголь, древесные отходы и т.д.
Главный минус этого типа котлов – высокая цена. Кроме того, в отличие от многих других видов котельного оборудования, пиролизный котел длительного горения с водяным контуром чаще всего энергозависимый.
От электричества питаются не только циркуляционный насос и приборы контроля, но и встроенный вентилятор: на естественной тяге это оборудование, как правило, не работает.
Твердотопливные дровяные и угольные котлы по популярности уступают только газовым. При этом они имеют один серьезный недостаток — загрузку топлива необходимо проводить несколько раз в сутки.
При обычном сгорании дров КПД котлов не превышает 75%, и часть горючих веществ просто улетает в трубу.

Пиролизные котлы длительного горения с водяным контуром гораздо практичнее и эффективнее.
Ни для кого не будет секретом то, что котлы пиролизные отопления на данный момент являются очень необходимыми и востребованными устройствами отопительных систем. Именно по этой причине очень многих наших людей стали интересовать именно эти агрегаты.
Пиролизный котел представляют собой особый котел отопления, который в качестве топлива может использовать паллеты, уголь, дерево, и иные материалы.
Одним из основных критериев, в зависимости от которого подразделяют отопительные котлы, является вид топлива, на котором они работают. Таким образом, на сегодняшнем рынке можно встретить котлы на паллетах, угле, дровах. Также можно для себя найти котлы так называемые универсальные.

Наиболее распространенным на данный момент являются дровяные твердотопливные котлы, которые имеют множество преимуществ. Первое – это то, что топливо считается самым доступным. Также необходимо отметить то, что такие котлы продаются по приемлемым ценам.
Отличительной чертой пиролизных котлов является контроль уровня кислорода в камере сгорания, и соответственно контроль температуры и скорости сгорания топлива. Пиролизный котел на твердом топливе обеспечит вашу независимость от газа и электричества, поскольку расходы на эти энергетические источники значительно превышают стоимость твердого топлива.
Это интересно: Как заливать наливной пол самовыравнивающийся — разъясняем по полочкам
Продукты реакции
В результате переработки резиновых отходов происходит выделение нескольких видов продукции:
- Топливо жидкой формы.
- Остаток, содержащий углерод.
- Газ при пиролизе.
- Металлическая армирующая проволока.
Жидкость
Жидкий остаток, по сути, представляет собой синтетическую нефть, схожую по своему составу с природной. При обработке полученного сырья на нефтеперерабатывающих заводах возможно получить такие виды материалов, как бензин, мазут, а также синтетическое масло для автомобильной техники.
Во многих странах такой способ утилизации нашел широкое применение, из огромного числа автошин производят дизельное топливо. С одной тонны шин в результате пиролиза получают 500 л топлива. Жидкий остаток можно применять без обработки для печей и котлов в качестве основного топлива.
Углеродсодержащий остаток
Твердый остаток нашел широкое применение в некоторых областях:
- Он аналогичен активированному углю по своим абсорбентным свойствам.
- Как черный краситель в лакокрасочном и цементном производстве.
- Как сырье для изготовления новых резиновых изделий, а также покрышек.
- Добавляется в жидкое топливо, либо сжигается сам в специальных печах.
Пиролизный газ
Пиролиз покрышек производится с выделением газа, который по своим характеристикам схож с природным. Большая часть данного газа в результате горения в печи разделяется на жидкие фракции, а также невыпадающие в осадок остатки, которые поддерживают разложение резины.
Металлический корд
Металлическая проволока при воздействии высокой температуры не подвержена разложению и остается в практически неизменном виде. Сердечник автомобильных шин производится из качественной стали, которая при дальнейшей переплавке находит свою вторую жизнь
Как сделать пиролизный котёл своими руками
Технологический процесс изготовления котла пиролизного принципа действия включает выполнение слесарных и сварочных работ.
Необходимые материалы и инструмент
Для изготовления качественного агрегата необходим опыт в работе со следующими инструментами:
- аппарат электросварочный;
- дрель электрическая;
- угловая шлифмашина;
- набор слесарных инструментов — угольник, уровень.
Потребуются материалы и комплектующие:
- металл:
- листовой, толщина 4 мм, 7,5 м²;
- труба — 8 м (диаметр 57 мм, толщина стенки 3,5 мм);
- полоса сталь (толщина 4 мм, ширина 20 мм) — 7,5 мп;
- полоса сталь (толщина 4 мм, ширина 30 мм) — 1,5 мп;
- полоса сталь (толщина 5 мм, ширина 80 мм) — 1 мп;
- шамотный (огнеупорный) кирпич — 15 шт;
- профтруба 60×30 (толщина стенки 2 мм) — 1,5 мп;
- профтруба 80×40 (толщина стенки 2 мм) — 1 мп;
- круг отрезной d 230 — 10 шт.;
- круг шлифовальный d 125 — 5 шт.;
- электроды — 5 пачек;
- датчик температуры.
Им автоматически выполняются манипуляции с заслонкой: открытие (для увеличения температуры горения) и закрытие (при достижении температурой максимального значения)
Температурный датчик — это механическое устройство контроля количества воздуха, проходящего в камеру сгорания.
Продуктивность работы котла зависит от функционирования дымоотводящей трубы. Для обеспечения хорошей тяги дымоотвод должен соответствовать требованиям качества:
- высота не меньше 5 метров;
- хорошее утепление;
- отсутствие резких изгибов;
- отвод конденсата;
- простой доступ для чистки.
Чертежи и схемы устройства
Пиролизный котёл без принудительной вентиляции имеет наиболее простую схему. Энергонезависимость конструкции удешевляет эксплуатацию агрегата.
Схема пиролизного котла с естественным дымоотводом имеет вид:
Для повышения высокого КПД некоторые конструкции имеют двойные стенки основания
Котёл состоит из трёх основных камер:
- загрузочная, служащая для заброса топлива;
- камера дожига, куда подаётся вторичный воздух;
- теплообменник, выходящий в трубу.
Горение сырья направляет поток газа сверху вниз. При подаче воздуха под колосники в массив шамотного кирпича происходит дожиг горючих газов. Продукты распада уходят через теплообменник в дымоотвод. Регулировка тяги выполняется термодатчиком на выходе из котла с помощью цепочки, связанной с заслонкой подачи вторичного воздуха.
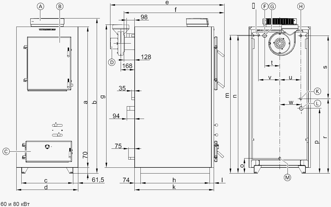
Подробную деталировку с размерами и допусками можно взять в стандартном чертеже:
A — контроллер контура котла; B — дверца загрузки; C — крышка зольника; D — дымоотвод; E — муфта для датчика температурного предохранителя; F — патрубок предохранительного клапана; G — подающая магистраль контура; H — подвод холодной воды в теплообменник; L — обратная магистраль контура котла; M — расширительный бак
Пошаговая инструкция изготовления агрегата
Изготовления пиролизного котла своими руками разделяется на этапы:
- Согласно чертежу выполняется разметка и нарезка деталей для корпуса. После «прихватывания» элементов производится контрольный замер, затем делаются сварочные швы. Установленные на свои места задняя панель и боковые стенки свариваются с двух сторон, зачищаются, обрабатываются сварочным герметиком.
- Производится монтаж труб теплообменника.
- После наваривания внешней стенки и обечаек дверок устанавливается механический регулятор контроля теплоносителя.
- Дымоход собирается наращиванием трубы Последующую часть нужно вставлять внутрь предыдущей, чтобы конденсат не попадал на внешнюю сторону. Готовая конструкция окрашивается огнеупорной краской.
Пиролизный котел своими руками
Рост популярности пиролизных котлов обусловлен рядом преимуществ этого отопительного прибора, одним из которых, помимо всего прочего, является независимость от снабжения жилища газом. Высокая стоимость заводских экземпляров техники дало толчок к изготовлению пиролизных котлов своими силами.
Выбираем инструменты и материалы
Перед сборкой пиролизного котла необходимо определиться с типом устройства, его конструктивными особенностями и подобрать подходящий типовой проект конструкции.
Для создания пиролизного котла потребуются:
- стальная толстостенная труба;
- листовая сталь толщиной 4 мм;
- профильные трубы;
- круглый прокат диаметром 20 мм;
- вентилятор центробежного типа;
- шамотный кирпич;
- терморегулирующая автоматика;
- гайки, болты, шайбы.
Минимальный набор инструментов для сборочных работ состоит из:
- сварочный аппарат для дуговой электросварки;
- болгарка;
- электродрель;
- комплект слесарных инструментов.
Схема сборки
Для определения точного количества материалов для пиролизного котла необходимо воспользоваться чертежами, которые можно найти в справочной литературе. Не имеет смысла самостоятельно создавать конструкцию устройства, достаточно подобрать наиболее подходящую из уже имеющихся. В схеме пиролизного котла должны быть обозначены: топка, теплообменник и организация подачи воды.
Схема сборки
Обзор производителей пиролизных котлов
Моделей пиролизных котлов длительного горения на рынке представлено множество. Зарубежные и отечественные производители предлагают отопительные устройства различной комплектации и стоимости. Все агрегаты отличаются между собой рабочими характеристиками, которые описаны ниже в таблице (отмечены некоторые из популярных изготовителей).
| Производитель | Характеристика |
|---|---|
| Blago (Благо) | Особенность этого газогенераторного котла в его крайней энергонезависимости. Агрегат работает на естественной тяге, а не от искусственной подачи воздуха. Предполагает возможность отопления различными видами топлива (дрова, щепки, опилки, обрезки, старые покрышки, кожа, резина, полиэтилен), при этом может работать на сырых дровах (с влажностью до 50 %) без потери мощности. Если конструкция небольшой мощности, то справятся с влажностью до 30-35%. Мощность моделей колеблется в пределах от 12 до 58 кВт. Компания утверждает, что топлива для агрегата требуется в среднем на 25 % меньше в сравнении с другими котлами с таким же механизмом действия. Закладка топлива в них происходит раз в 12-18 часов. Высокая безопасность гарантирована, а лёгкость использования – наглядна: контроль в автоматическом режиме, автоматическая чистка топливных каналов и отсутствие дыма. Можно подобрать котёл нужной мощности исходя из площади отапливаемого помещения:
|
| Atmos (Атмос) | Это чешская компания, которая производит более двухсот моделей котлов отопления. Агрегаты сжигают пеллеты, дрова, брикеты, сжиженный газ. Есть комбинированные котлы, а под заказ можно изготовить котёл на газе. Компания «Атмос» выпускает агрегаты с мощностью в пределах от 15 кВт, которые подходят площадям 90-180 м², до 1000 м² и больше для производственных помещений. Пиролизные котлы длительного горения могут работать на древесине, в таком случае они маркируются как Atmos DC, работающие на угле и древесине — Atmos C и Atmos AC, пиролизные котлы помечаются как Atmos DC 24 RS, DC 30 RS, а пеллетные котлы – Atmos. Маркировка котлов содержит также префиксы GS, GSE и S. Первые два типа имеют цельнокерамическую отделку обеих топок. За счёт этого коэффициент полезного действия становится выше, а процент выбросов в атмосферу углекислого газа значительно меньше. |
| Bosch (Бош) | Отличаются возможностью широкой регулировки мощности. Их КПД составляет в среднем 80 %, а объем воды в системе – 76-124 литра. Могут работать на древесине до 25 % влажности. Производитель выпускает основные три вида котлов:
|
| Viessmann (Виссманн) | Это стабильная компания, которая занимается выпуском продукции уже более ста лет. На сегодняшний день производитель имеет конкурентные преимущества в выпуске оборудования для систем теплоснабжения. Котельное оборудование «Viessmann» пользуется популярностью на предприятиях и в условиях дачных домов, квартир и коттеджей. Продукция «Виссманн» – продукция премиум-класса, качество которой соответствует своей цене, а также нормам и стандартам. Она крайне экономична, имеет высокий уровень безопасности и комфорта в эксплуатации. |
| Dakon (Дакон) | Мощность пиролизных котлов данного производителя колеблется в пределах от 18 кВт до 40 кВт. Все агрегаты в своей работе экологичны и экономичны (сжигание в камере с керамической форсункой повышает коэффициент полезного действия иногда до 85 %). Максимальная влажность твёрдого топлива доходит до 20 %. Пиролизный дровяной котёл «Дакон» имеет большую камеру загрузки сырья. Это способствует увеличению времени работы котла без присмотра. Сжигать агрегат может поленья в диаметре не больше 130 мм. Максимальная длина поленьев варьируется от размеров топки в конкретной модели котла. |
Таким образом, пиролизный котёл позволяет достичь удобства в использовании твердотопливного агрегата за счёт длительного горения топлива.
Плюсы и минусы пиролизного котла

Как и любое оборудование пиролизные установки длительного горения имеют как преимущества, так и недостатки.
К достоинствам можно отнести:
- Экономичные. Расход топлива снижается до 40% в зависимости от модификации, условий эксплуатации;
- Длительное горение. Это способствует тому, что после закладки пиролизного топлива подходить к котлу понадобится не скоро;
- Экологичность. Сгорание топлива происходит почти полное, поэтому вредных веществ практически не выделяется;
- Высокая теплоотдача продуктов сгорания. Температура удаляющихся газов заметно ниже, чем в обычных котлах;
- Возможно использование автоматических устройств регулировки мощности, за счёт изменения интенсивности тления.
Недостатки пиролизного оборудования следующие:
- Высокая стоимость. Дороговизна объясняется удобством и экономичностью;
- Зависимость от энергоресурсов. Учитывая наличие автоматики и принудительной вентиляции пиролизные котлы нуждаются в подключении к электросети;
- Размеры. Габариты значительно больше, чему у традиционных твердотопливных установок.
Основным недостатком всё же выступает стоимость, а остальные не представляют больших проблем.
Порядок изготовления пиролизного котла
Прежде чем приступать к изготовлению котла, ознакомьтесь с некоторыми полезными рекомендациями. При условии их соблюдения готовое оборудование будет максимально производительным, эффективным и экономичным.
Полезные рекомендации
- Систему нужно укомплектовать вентилем для регулирования интенсивности движения теплоносителя.
- Для увеличения теплоотдачи трубу теплоносителя лучше сделать изогнутой, к примеру, в форме змеевика.
- Проем для загрузки топлива должен иметь прямоугольную форму. При этом дверцу отверстия следует укомплектовать стальной накладкой для уплотнения.
- Для контроля интенсивности поступающего воздушного потока система укомплектовывается ограничителем.
Инструкция
Чертеж пиролизного котла
Первый шаг. Из листового металла вырезаем стенки корпуса котла в количестве 4 штук. В передней стенке вырезаем отверстия для топочной камеры и зольника.
Второй шаг. Вырезаем отверстия для трубников и дымососа.
Третий шаг. Соединяем вместе все металлические стенки, за исключением задней. Для этого используем сварочный аппарат. Тщательно отшлифовываем стыки между сторонами будущего отопительного котла.
Стенки котлаДверцаЗольник
Четвертый шаг. Собираем теплообменник котла в соответствии с представленной схемой. Свариваем трубы.
Котел
Пятый шаг. Вставляем теплообменник в корпус котла. Убеждаемся в герметичности соединений с помощью компрессора. При отсутствии течей привариваем заднюю стенку корпуса.
Шестой шаг. Устанавливаем решетку колосника. Она разделит корпус котла на 2 камеры. В одной (нижней) будет тлеть загрузка, во второй – сгорать газы. Нижнюю камеру укомплектовываем воздуховодом, а после обкладываем огнестойким кирпичом с каждой стороны.
Корпус пиролизного котла изнутри
Седьмой шаг. Монтируем дверцы зольной камеры и топливника. Они должны максимально плотно прилегать к корпусу.
Восьмой шаг. Устанавливаем собранный котел на предварительно выложенную кирпичную опорную площадку.
Девятый шаг. Подключаем дымоход. Трубу для отведения дыма рекомендуется обернуть минеральной ватой для утепления.
Десятый шаг. Подключаем к агрегату водяной контур.
Одиннадцатый шаг. Устанавливаем дутьевой насос.
КотелПиролизный котел своими руками
Дополнительно котел можно автоматизировать, установив систему температурных датчиков и регуляторов. Они будут контролировать интенсивность подачи воздуха.
Вытяжка около котлаБлок автоматики (подключен насос, вытяжка и датчики)
Принцип работы пиролизного котла
Для лучшего понимания принципа работы, рассмотрим следующий рисунок:
Продольный разрез пиролизного котла
- Панель управления.
- Рычаг задвижки загрузочной камеры.
- Дверь загрузочной камеры.
- Загрузочная камера.
- Ручка регулировки притока первичного воздуха.
- Ручка регулировки притока вторичного воздуха.
- Дверь камеры сгорания.
- Горелка.
- Керамический отражатель.
- Камера сгорания.
- Окно прочистки.
- Газоход.
- Задвижка загрузочной камеры.
- Вентилятор с возможностью регулирования скорости вращения.
- Аварийный теплообменник.
- Патрубок подачи.
- Патрубок подключения аварийного теплообменника.
Итак, из верхнего рисунка видно, что горение в таком котле происходит странным, на первый взгляд, образом — сверху вниз.
Это становится возможным благодаря наличию в составе котла вентилятора (позиция 14).
Он создает тягу, которая заставляет пиролизные газы идти в камеру сгорания, где после смешивания их в определенной пропорции с вторичным воздухом происходит их воспламенение.
Приток вторичного воздуха регулируется при помощи специальной ручки (позиция 6).
Такую конструкцию имеют многие отопительные аппараты. В частности:
- Buderus logano.
- Caldera Megatherm.
- Eko-vimar Orlanski.
Но существуют конструкции, работающие на естественной тяге.
В них для работы не требуется наличие вентилятора, что делает такой отопительный аппарат энергонезависимым.
Однако, управлять режимом работы такого котла становится трудно.
Он будет работать по сути как обычный твердотопливный. А в нарисованной выше конструкции есть возможность управления процессом сгорания газа при помощи изменения скорости вращения вентилятора, что повышает КПД всей системы. В этой статье мы не будем подробно на них останавливаться.
Газогенераторный котел работает при высоких температурах и поэтому должен быть изготовлен из высококачественных жаропрочных сталей.
Кроме этого, камера сгорания покрывается шамотными кирпичами. Они защищают металл от разрушения высокими температурами.
Нужно следить, чтобы после чистки камеры сгорания все шамотные кирпичи были уложены ровно без зазоров.
Также, для чистки предусмотрены специальные лючки, расположенные по разным сторонам котла.
Чистку стоит производить согласно рекомендациям производителя, которые изложены в паспорте на изделие.
Котлы ведущих производителей обязательно комплектуются блоками управления (на рисунке позиция 1).
Блок осуществляет контроль за температурой теплоносителя и в зависимости от нее может включать аварийный теплообменник (аварийный перегрев) или уменьшать скорость вращения вентилятора, что уменьшает тягу и приглушает тем самым горение.





































