Последовательность действий
Ниже предлагаем ознакомиться с поэтапным подключением газа к частным домам, вне зависимости от их величины.
- Выбираем тип газоснабжения. Если отапливаемая площадь здания составляет не более 250 квадратных метров, максимальный расход топлива не превысит пять кубометров в час.
- Составляем проект документа с техническими условиями на эксплуатацию газа. Для этого придется посетить местное представительство газовой службы и подать на проверку ряд документов, прикрепленных к заявлению. Длительность рассмотрения обращения составляет один месяц. Подключение к газовой трубе возможно при условии, что расстояние между магистралью и домом не превышает 200 метров.
- Технические работы по подключению. Если по результатам рассмотрения заявления специалисты дадут положительный ответ, на объект должна выехать бригада мастеров. Они выполнят техническую врезку в магистраль. Выполнение этой процедуры возможно только дипломированными специалистами. Цена предоставления услуги зависит от особенностей конкретного случая. Главными факторами считаются такие, как сложность прокладки и место врезки. Средний показатель варьируется в пределах от 20 до 50 тысяч рублей.
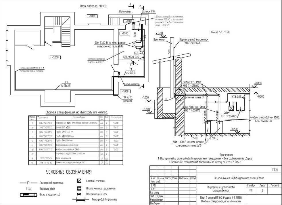
- Разработка проекта газификации. Опираясь на результаты практических наблюдений, здесь стоит отметить, что разработка проекта газификации станет самой затратной частью рассматриваемой процедуры. Проект должен предусматривать схему расположения всего оборудования, работающего на газу. Обязательным условием является и указание мест размещения каналов отвода дыма (дымохода). Высокая стоимость процедуры возможна при обслуживании клиента в частном проектном бюро. Но такие затраты компенсируются минимальными сроками. Значительно меньше обойдется проект, разработанный сотрудниками городской службы газа. Но тут придется долго ждать. Иногда – даже шесть месяцев.
- Выполнение монтажных работ. Опять-таки, все газовое оборудование обязаны устанавливать только высококвалифицированные специалисты, имеющие соответствующую компетенцию. Обязательное условие – предварительное заключение договора на предоставление услуг.
- Подключение к центральной магистрали. Сотрудники горгаза обязаны проверить, правильно ли выполнено подключение, присутствуют ли следы утечки. Эти процедуры выполняются в целях безопасности. Чтобы вызвать бригаду, придется подать соответствующую заявку. Длительность ожидания – около двух недель. По окончанию проверки на руки выдается квитанция. С ней собственник отправляется в газовую службу и заключает договор на обслуживание. В это время специалисты отправляются на объект, устанавливают счетчик, а затем инструктируют всех жителях о технике безопасности.
Поскольку большинство домов находятся от магистрали дальше, чем на две сотни метров, в подобной ситуации невозможно подключиться к трубопроводу. Ведь тогда придется прокладывать отдельную магистраль к дому заказчика.
Неплохой вариант решения проблемы – обращение целого поселка за помощью
Тут важно, чтобы большинство местных жителей проявляло интерес к подключению централизованной магистрали
Горгаз, рассмотрев обращение, обязан бесплатно подвести дополнительную трубу, расположенную на регламентированном правилами расстоянии.
Для идеалистов. Почему денег в бюджете никогда нет?
Программы выплаты компенсации за газификацию носят эпизодический характер. То есть, в рамках годового бюджета субъекта выделяются некоторые средства на указанные цели. Еще до того, как решение о начале действия программы будет доведено до населения, большая часть выделенных денег уже будет распределена среди чиновников, которые активно строят загородные коттеджи, виллы, дворцы. Разумеется, никто из них не хочет платить деньги за газификацию из своего кармана. Поэтому, их нужды удовлетворяются в первоочередном порядке, а нужды рядовых застройщиков – по остаточному принципу.
Этапы газификации жилого дома
Для начала процесса потребуется приложить усилия, первым делом уточняется информация о юрисдикции существующей магистрали. После чего оформляется технический план на дом, затем будущему потребителю нужно составить проект.
Последним этапом будут непосредственные строительные работы, прокладка системы снабжения производится специалистами, которые имеют лицензию на реализацию подготовленного топоплана участка.
Получение технических условий на газоснабжение
Подобные данные могут выдаваться отдельным документом, но в некоторых ситуациях он является приложением к договору. Разработкой занимается ГРО, после подачи необходимых документов учитываются такие факторы как:
- Нагрузка при расходе в час.
- Срок подключения.
- Срок действия ТУ, не более 70 дней.
Если по истечении отведенного времени не получилось оформить договор, то процедуру следует проделать заново.
Проект газификации частного дома под ключ
Документ создается еще до начала всех работ, без него приступать к реализации нельзя, это обусловлено потенциальной опасностью, которая предполагает соблюдение новых правил. Специалисты этой отрасли знают все тонкости манипуляций и неукоснительно их выполняют. Соответствие проекта с нормами потребует проверки, в некоторых случаях может производиться доработка.

Стоимость проекта газификации
В этом вопросе главную роль играет сложность работы и проведение по всем правилам системы снабжения. Специалисты могут индивидуально оценить конечную сумму, подобные моменты стоит уточнять при личной встрече. Зачастую плата за услугу в среднем обходится 1000 рублей за погонный метр, но это только приблизительные данные.
Покупка газового оборудования
Закупать приспособления необходимо предварительно, без их технических характеристик невозможно просчитать стоимость газификации и составить смету. Но прежде чем посетить магазин не будет лишним подумать над мощностью и производительностью каждого элемента, который будет устанавливаться в помещениях.
Расставлять агрегаты необходимо в соответствии с составленным проектом, этому нюансу нужно уделить особое внимание. Цены на продукцию такого плана отличаются, все зависит от комплектации и производителя
Монтаж газопровода
После подведения трубы от центральной магистрали хозяин может оплатить непосредственное подключение по земельному участку, на котором расположена постройка. Сотрудники ГРО сделают такую работу гораздо быстрее, для этого составляется определенный договор.

В большинстве ситуаций искать частные фирмы будет невыгодно, их в большинстве районов немного, а заказ может обрабатываться определение время. Просчет материалов и другие мелкие моменты ложатся на специалистов, работать с ними получится достаточно продуктивно, тарифы зачастую можно узнать заранее.
Приемка работ
Если сторонняя организация будет заниматься этим вопросом, пуск газа производят только профессионалы ГРО, именно поэтому люди отдают предпочтение работать напрямую с организацией. Контроль хозяина также не будет лишним, ведь за небольшие оплошности мастеров без должного опыта отвечать ему.
Заключение договора с межрегионгазом на подачу газа
Подобные документы касаются обеспечения бытовых нужд абонента по поставке голубого топлива, с целью урегулирования отношений сторон. Прежде чем договор вступит в силу, необходимо предоставить перечень документов с соблюдением всех рекомендаций.
Ознакомившись с условиями, каждый потребитель может задать интересующие вопросы, после чего начнется беспрерывная поставка газа в постройку.
Подобные мероприятия предполагают присутствие хозяина постройки или доверенного лица, прежде чем приедут специалисты потребуется получить разрешение на ввод системы в эксплуатацию. Письменное заявление можно подать в ГРО, но для этого потребуется собрать определенный пакет документов.
Где выдают технические условия на присоединение к газовой сети?
Технические условия на газификацию здания получают в компании по месту застройки, которая эксплуатирует ближайшие к нему газораспределительные сети. Если это областной центр России, то в местный «Облгаз». Для районов этой области, необходимо обращаться в «Райгазы» — филиалы областной компании.
Собственник объекта газификации должен предпринять некоторые шаги для получения технических условий (согласно Постановления №82 пункт 3):
- Написать обращение в ГРО о предоставлении технических условий на подключение газа либо заявление о заключении договора о подключении к системе согласно формам, предусмотренным нормативными актами. В запрос, по желанию абонента, можно добавить просьбу о предоставлении данных о размере оплаты за присоединение к ГРС (п.13-1 Постановления №82).
- При невозможности присоединения здания к газовой системе из-за запрета его газификации, согласно законодательству РФ, либо не предоставления собственником всех необходимых бумаг, газовая компания обязана в течение 3 суток от времени принятия заявки, вернуть ее подавшему заявку вместе с предоставленными бумагами.
- Абонент может потребовать выдать предварительные технические условия(в них указываются общие сведения и часовое потребление топлива), но их действие распространяется всего на 70 дней.
К сведению Газораспределительная компания должна сделать технические условия на подключение к газораспределительной системе в течение 14 дней, если не существует правовых препятствий для присоединения сооружения к ГРС.
Категории газифицируемых объектов
Согласно Постановления №1314 Правительства России домовладельцам необходимо выяснить, сколько стоит сейчас провести в их дома газ через обращение в региональную службу газораспределения.
Прежде всего, расходы домохозяйства на технологическое подключение зависят от объема работ по газификации. В связи с этим определено три категории капитальных объектов.
Первая категория объектов. В первой категории состоят частные домохозяйства, общее потребление природного газа в которых не выше 5 м³/ч.
К ним приравниваются предприятия малого бизнеса, технологическое оборудование которых потребляет не более 15 м³/ч смеси пропана с бутаном. Т.е. наименьшая плата за подключение к газораспределительной сети взимается с коттеджей площадью менее 300 м² и малых предприятий из коммунально-бытовой области.
Выполнение монтажных работ по подводке газопроводной нитки завершится у границы участка. Разводка газовой трубы по потребляющему оборудованию домохозяйства на его территории выполняется по отдельному проекту
Возможный объем работ по прокладке присоединительных газовых коммуникаций к домохозяйству первой категории ограничен:
- наибольшая дистанция от магистрального газораспределителя до потребляющего газ оборудования – менее 200 м;
- давление газа в газоснабжающем источнике – до 0,3 МПа.
Помимо этого прокладка вводных газопроводов производится без построения пунктов редуцирования (снижения давления) магистрального природного газа.
Плата за подключение газопровода для объектов первой категории составляет 20 000-50 000 рублей (п.8 приложения к приказу ФСТ РФ №101-э/3 от 28.04.2014 г.). Точная цена определяется местной ГРО согласно условий на данной территории, но не может превысить 50 000 руб.
Вторая категория объектов. В числе объектов второй категории состоят домохозяйства, подключение которых требует распределяющих газопроводов и/или создания пунктов редуцирования магистрального газа. Их ориентировочное потребление газа выше нормы объектов первой категории, требуется более высокое давление газоснабжения (т.е. 0,6 МПа и более) и т.п.
Соответствие стоимости подключения по первой категории наблюдается, если ввод трубопровода выполняется в газомагистраль низкого давления. Если же понадобится редуцирование газа – цена подключения превысит 50 тыс. руб.
В частном жилищном секторе объекты, подпадающие под вторую категорию, обычно имеют площадь свыше 300 м². Для их газификации применяются стандартизованные тарифные ставки, рассчитываемые по разработанной ФСТ РФ методике (приложение к приказу №101-э/3 от 28.04.2014 г.).
Надо отметить, что заявителям объемов потребления природного или искусственного газа от 300 м³/ч и выше требуется согласовывать подключения газа с ГРО, имеющей технологическую связь с газопроводом исполнителя.
Утверждение сумм тарифов за подключение газа к домохозяйствам второй категории производит местный орган исполнительной власти РЭК (т.е. региональная энергетическая комиссия).
Третья категория объектов. К объектам капстроительства третьей категории принадлежат хозяйства, нуждающиеся в индивидуальном проекте газификации. Для них сумма определяется по проектно-сметной документации, предварительно прошедшей экспертизу.
Размер расходов на газификацию для домовладений третьей категории устанавливается РЭК, относящейся к местоположению подключаемого к магистральному газу хозяйства.
Расценки на пробрасывание газопровода по участку от пограничного ввода у разных компаний неодинаковы. Однако стоит учесть потребность многочисленных согласований газового проекта. С опытным предприятием-исполнителем полноценная газификация произойдет быстрее
Характерными признаками объектов заявителей, нуждающихся в газификации, считаются следующие условия:
- плановый расход природного газа от 500 м³/ч;
- работы по присоединению к газовой магистрали требуют выведения трубопровода через территории лесфонда, по скальным грунтам, болотам и водным препятствиям;
- работы по монтажу газопровода требуют прохода через препятствия, вынуждающие применять горизонтально-направленное бурение.
Т.е. по правительственному Постановлению №1314 жестких расценок на технологическое присоединение заявителей к газовой сети фактически нет. Стоимость газификационных работ зависит от ряда условий, определяющих ее размер в рамках соответствующих методик ФСТ РФ.
Какие работы включаются в смету и подлежат компенсации
Государство пристально следит за тем, чтобы бюджетные средства, выделяемые для выплаты компенсации стоимости работ по газификации частного сектора не расходовались напрасно. Для этого утвержден перечень работ, необходимых и достаточных для газификации в целях теплоснабжения и бытовых нужд.
Обычно все компании, начиная с регионального оператора «Межрегионгаз» и заканчивая частными компаниями, получившими лицензии на производство работ с газовым оборудованием, придерживаются его. В прейскуранте цен на услуги может быть гораздо большее число позиций, но следует помнить, что затраты заказчика будут оплачены только в том объеме, который достаточен для подключения к газовой трубе. Любые прихоти заказчика не входящие в этот список – оплачиваются за его счет и не компенсируются.
Компенсируемые работы:
- выдача технических условий;
- выполнение функций техзаказчика;
- разработка проекта газификации;
- строительно-монтажные работы;
- теплотехнический расчет устанавливаемого оборудования.
Чтобы представить, какие средства придется вложить заказчику до получения компенсации, обратимся к прейскуранту одной из частных компаний, занимающихся газификацией коттеджей в Тюмени:
Из него следует, что минимальная стоимость работ составляет 52 250 рублей, а средняя – 88 550 рублей и практически никогда не превышает 100 000 рублей.
Юридическая сторона газификации
С 1 марта 2014 начали действовать совершенно новые схемы оформления подключения природного газа к индивидуальным жилым домам. Основную роль в этом процессе играют государственные газовые службы. В специальном Федеральном законе «О газоснабжении» теперь выделены основные группы потребителей природного газа. Домовладельцев законодатели отнесли к 1-й группе потребителей. Эта группа имеет серьезные ограничения по расходу природного газа. Им разрешено расходовать газ со скоростью не более чем 5 м³ в час. На практике такой нормы потребления достаточно чтобы обогреть в лютый мороз частый дом площадью 250 м². Если площадь дома будет больше то подключение будет сложнее и дороже, поскольку придется согласовывать еще и перевод в другую группу потребления.
Для того, чтобы собрать все необходимые документы и согласовать их можно нанять специализированную компанию. Однако самостоятельное прохождение всех инстанций обойдется на порядок дешевле, а по скорости ничуть не уступит платному. А стоимость услуг таких компаний достаточно высока и зависит от сложности проекта. В среднем согласования «по ключ» могут стоить до 300 тысяч рублей. Поэтому смысл в самостоятельном прохождении инстанций действительно есть.
Можно ли провести газ на дачу
Вряд ли кто поспорит с тем, что провести на дачу газ – это не только обеспечить себя дополнительными удобствами, но и сэкономить впоследствии. Магистральный газ по своей дешевизне вообще находится вне конкуренции, если сравнивать его с иными видами топлива. Но можно вспомнить и о других преимуществах газификации. Городским жителям пользоваться газом гораздо привычнее, чем печкой. Да и, по правде говоря, безопаснее.
В принципе, к плите можно подсоединить газовый баллон и готовить обычным способом, не экспериментируя с деревенской печью. Но такие запасы газа приходится постоянно пополнять, да и обходятся они дороже. Не лучше ли сразу провести газ на дачу?
Конечно, просто не будет. Чтобы провести газ, сначала нужно получить разрешение. А для этого придётся побегать по инстанциям за различными справками. При проведении газа на дачу вы не просто заключаете договор с поставщиком, в процедуре задействовано множество других сторон, а именно:
- Газораспределительная организация, о функциях которой говорит само её название.
- Газотранспортная компания. Фронт её работ тоже понятен (перекачка сырья).
- Газотранспортная система. Это «прямая линия» между клиентом и производителем топлива.
- Газоснабжающая организация, которая поставляет вам газ согласно подписанному договору.
Как этот договор заключить? Для начала отправьте по нужному адресу заявление о вашем намерении подключиться к магистральному газопроводу. Это и будет первым этапом долгой дистанции, которую, так или иначе, нужно пройти до конца.
Как провести газ на дачу по закону: 3 способа
Для проведения газа на дачу можно выбрать любой из трёх методов в зависимости от того, который вам больше подходит. Итак:
Непосредственное подключение к магистрали
Из всех способов этот самый выгодный в материальном плане. Да и самый удобный тоже. Правда, им не удастся воспользоваться, если ваша дача находится на слишком большом удалении от магистрального газопровода.
Применение сжиженного газа
Нет возможности провести газ на дачу от магистрали? Тогда в качестве альтернативы можно использовать сжиженный газ в баллонах. Неплохой вариант для дачи, но имеет свои недостатки. Во-первых, нужно где-то эти баллоны постоянно обновлять, и хорошо, если дачный поселок ими снабжается регулярно. Во-вторых, солидные дома с площадью больше 200 кв. м. таким способом не отопить, так как это слишком дорого. Ну, а если дача у вас небольшая, и вы всё же решили установить на ней газовое отопление, тогда придётся дополнительно приобрести газовый котёл, редуктор и специальные шланги.
Использование газгольдера
Установив огромный резервуар для хранения газа у себя на даче, вы, безусловно, сэкономите на перезаправке баллонов. Но есть одна тонкость: цена данного агрегата «кусается». Не каждый сможет выложить единовременно от 150 тыс. рублей и ждать, пока вложения окупятся.
Порядок действий в РФ
Для того чтобы подвести магистральный газ к дому, необходимо получить ряд документов. Несколько лет тому назад начиналось все с получения техусловий (ТУ). В этом документе была прописана возможность/невозможность подключения к магистральному газопроводу по конкретному адресу. Получение этого документа давало право в течение нескольких лет (от 2-х до 5-ти) проводить подготовительные работы. Теоретически выдавался этот документ бесплатно. В реалии стоимость получения ТУ была настолько высокой, что отпугивала многих. Суммы в 500 тыс. руб и больше — обычное дело. Причем стоимость оборудования и материалов — далеко не самая затратная частью. Больше средств требовали именно за оформление бумаг, поэтому провести газ в дом многие не решались.
Чтобы подвести газ к дому, необходимо пройти несколько этапов
В 2013-2014 годах были внесены изменения в порядок подключения к газоснабжению. Было принято Постановление Правительства РФ от 30.12.2013 № 1314 (ред. от 14.11.2014) «Об утверждении Правил подключения (технологического присоединения) объектов капитального строительства к сетям газораспределения, а также об изменении и признании утратившими силу некоторых актов Правительства Российской Федерации». Изменений много, кому интересно, можно найти текст целиком. Для тех, у кого нет времени досконально изучать документы, кратко изложим порядок действий по новым правилам для подключения природного газа.
- Получение технических условий. Ранее этот пункт был обязательным для всех. Сегодня, если вы тянете газ к частному дому, даче, гаражу (есть полный список в постановлении) и ваше оборудование будет потреблять менее 300 куб.м/ч, можно обойтись без получения предварительных технических условий. В этом случае газификация частного дома стартует со второго пункта.
- Подать заявку в Газораспределительную организацию — ГРО (обычно ОблГаз, ГорГаз) на подключение к существующей сети. Заявку можно заполнить непосредственно на сайте поставщика газа. При посещении организации, чтобы провести газ в дом, вам надо иметь с собой:
- Заполненную заявку (бланк можно найти на сайте ГРО). В ней указываются:
- паспортные данные заявителя, адрес дома;
- характер потребления газа (отопление, только нагрев воды для бытового использования и приготовление пищи, технологическое использование);
- сроки проектирования и строительства объекта (разрешение на строительство, если здание только в планах);
- максимальный часовой расход всем оборудованием (МЧРГ);
- номер и дата выдачи предварительных ТУ, если они были выданы.
- Документы на дом/земельный участок/гараж и т.д.
- Рассчитанный максимальный расход газа (с указанием типа оборудования, его марки, максимального расхода). Если расход в час менее 5 кубов, расчет не требуется (газовая 4-х конфорочная плита с духовкой расходует не более 1,1 куба/час).
- План дома с привязкой к территории города/поселка.
- Заполненную заявку (бланк можно найти на сайте ГРО). В ней указываются:
Строительство газопровода. Строительные работы на вашем участке может выполнять не только ГРО, но и все строительные организации, имеющие допуск к данному виду работ. Вы имеете право выбора. С выбранной кампанией заключаете договор подряда.
- Проверка выполнения ТУ. Чтобы пройти этот этап, вам необходимо иметь АКТ приемки законченного строительства (оформляется организацией, которая строила вам газопровод). Второй документ, который могут потребовать — АКТ разграничения имущественной принадлежности и эксплуатационной ответственности. Если коротко, суть документа в том, что за газопровод, который находится на вашем участке, несете ответственность вы. Еще могут потребоваться план вентиляционных каналов (если дом строящийся) или Акты о состоянии вентсистемы.
- Заключение договора на техническое обслуживание. Теоретически, это может быть и не ГРО (не ОблГаз) а любая службы, имеющая соответствующие допуски и круглосуточную диспетчерскую службу и персонал для оперативного устранения аварий.
- Заключение договора с ГРО на поставку топлива. Поставляют газ только ГРО, так что тут вариантов нет. При оформлении договора заводится лицевой счет.
- Пуск газа. Дата согласовывается с ГРО. Услуга платная (как и все другие, кстати). В стоимость входит объем газа на продувку компонентов системы.
Получить Акт о технологическом подключении.
На этом можно считать, что газ к дому/даче подключен. Вроде, все несложно, но, на самом деле, отбирает много времени, сил, средств и нервов. Особенно если вы не хотите пользоваться услугами ГРО для строительства газопровода или есть проблемы с подключением (нет технической возможности).
Этапы газификации жилого дома
Для начала процесса потребуется приложить усилия, первым делом уточняется информация о юрисдикции существующей магистрали. После чего оформляется технический план на дом, затем будущему потребителю нужно составить проект.
Последним этапом будут непосредственные строительные работы, прокладка системы снабжения производится специалистами, которые имеют лицензию на реализацию подготовленного топоплана участка.
Получение технических условий на газоснабжение
Подобные данные могут выдаваться отдельным документом, но в некоторых ситуациях он является приложением к договору. Разработкой занимается ГРО, после подачи необходимых документов учитываются такие факторы как:
- Нагрузка при расходе в час.
- Срок подключения.
- Срок действия ТУ, не более 70 дней.
Если по истечении отведенного времени не получилось оформить договор, то процедуру следует проделать заново.
Проект газификации частного дома под ключ
Документ создается еще до начала всех работ, без него приступать к реализации нельзя, это обусловлено потенциальной опасностью, которая предполагает соблюдение новых правил. Специалисты этой отрасли знают все тонкости манипуляций и неукоснительно их выполняют. Соответствие проекта с нормами потребует проверки, в некоторых случаях может производиться доработка.
Стоимость проекта газификации
В этом вопросе главную роль играет сложность работы и проведение по всем правилам системы снабжения. Специалисты могут индивидуально оценить конечную сумму, подобные моменты стоит уточнять при личной встрече. Зачастую плата за услугу в среднем обходится 1000 рублей за погонный метр, но это только приблизительные данные.
Покупка газового оборудования
Закупать приспособления необходимо предварительно, без их технических характеристик невозможно просчитать стоимость газификации и составить смету. Но прежде чем посетить магазин не будет лишним подумать над мощностью и производительностью каждого элемента, который будет устанавливаться в помещениях.
Расставлять агрегаты необходимо в соответствии с составленным проектом, этому нюансу нужно уделить особое внимание. Цены на продукцию такого плана отличаются, все зависит от комплектации и производителя
Монтаж газопровода
После подведения трубы от центральной магистрали хозяин может оплатить непосредственное подключение по земельному участку, на котором расположена постройка. Сотрудники ГРО сделают такую работу гораздо быстрее, для этого составляется определенный договор.
В большинстве ситуаций искать частные фирмы будет невыгодно, их в большинстве районов немного, а заказ может обрабатываться определение время. Просчет материалов и другие мелкие моменты ложатся на специалистов, работать с ними получится достаточно продуктивно, тарифы зачастую можно узнать заранее.
Приемка работ
Если сторонняя организация будет заниматься этим вопросом, пуск газа производят только профессионалы ГРО, именно поэтому люди отдают предпочтение работать напрямую с организацией. Контроль хозяина также не будет лишним, ведь за небольшие оплошности мастеров без должного опыта отвечать ему.
Заключение договора с межрегионгазом на подачу газа
Подобные документы касаются обеспечения бытовых нужд абонента по поставке голубого топлива, с целью урегулирования отношений сторон. Прежде чем договор вступит в силу, необходимо предоставить перечень документов с соблюдением всех рекомендаций.
Ознакомившись с условиями, каждый потребитель может задать интересующие вопросы, после чего начнется беспрерывная поставка газа в постройку.
Подобные мероприятия предполагают присутствие хозяина постройки или доверенного лица, прежде чем приедут специалисты потребуется получить разрешение на ввод системы в эксплуатацию. Письменное заявление можно подать в ГРО, но для этого потребуется собрать определенный пакет документов.
Одинаковы ли правила подготовки документов?
Единое предприятие реализует программу газификации конечного абонента. Совместно с руководством областей ежегодно составляются планы-графики. В документах обозначаются населенные пункты, к которым будут подведены трубы.
Поэтому изначально известно планируемое число абонентов. По домвладениям, котельным и прочим организациям существуют определенные правила окончания работ. Сама программа основывается на предложениях регионов.
Если прием газа планируется осуществить внутри поселения, возведение уличных сетей и подготовка абонентов осуществляется за счет региональной администрации РФ. При этом могут быть привлечены и бюджетные средства и другие источники оплаты.
Внутрипоселковые газопроводы должны соответствовать техническим требованиям ПАО «Газпром». Обоснованием для появления внутрипоселкового газопровода в регионах могут быть:
- оплата текущих поставок топлива;
- экономическая целесообразность;
- обеспечение готовности абонентов;
- загрузка существующих труб;
- содействие местных администраций.
Процесс подключения к газовой магистрали частного сооружения – сложный. Особенно часто возникает вопрос, какие документы нужны для газификации частного дома в деревне. Процедура подготовки документов достаточно дорогостоящая. Однако впоследствии это компенсируется низкой стоимостью энергоносителя.
Рассмотрите подробный план действий. Он может отличаться в зависимости от региона.
Стоит начать с изучения . Он разделяет потребителей на основные группы. Большая часть владельцев частных сооружений входят в первую группу. Здесь определены ограничения по расходу газа – не более 5 м.куб. в час. Обычно этого хватает, чтобы отопить жилье до 250 м.кв.
Порядок действий может разниться от того, самостоятельно ли вы будете собирать необходимые документы для газификации или воспользуйтесь помощью специалистов. Специализированные компании значительно уменьшат трудоемкость процесса, однако стоимость оформления полного пакета может составлять значительную сумму.
Основные аспекты
Изначально следует установить собственника газопровода, которым обычно является ГорГаз, именно он может принять решение относительно врезки. В случае положительного решения следующим шагом должно быть посещение проектной организации, которая после заключения договора изготовит проект подключения Вашего дома к обозначенному газопроводу.
Имея на руках готовый проект, нужно обратиться в монтажную организацию, которая возьмет на себя решение всех вопросов, связанных с подключением к газопроводу. Вместе с тем на нее возлагается ответственность за сдачу данного участка газопровода в эксплуатации, для осуществления которой должна иметься специальная лицензия, дающая право проведения указанных работ.
Оптимальным вариантом расчета с монтажной организацией является передача указанных в договоре средств после принятия объекта органом Госконтроля. Когда пройдены все инстанции и завершены все работы, то остается распоряжаться газом в свое удовольствие, однако это только основные моменты, чтобы ощутить весь процесс более реалистично, лучше шаг за шагом рассмотреть последовательность выполнения работ, связанных с газификацией дома.
Заключение договора на подключение газа
Если ТУ подтвердили возможность газификации, вам нужно подать заявление о подключении. В нем нужно указать:
- фамилию, имя, отчество;
- серию и номер, дату выдачи паспорта, почтовый адрес и иные способы обмена информацией (телефоны, факс, адрес электронной почты);
- наименование и местонахождение объекта, который необходимо подключить к газу;
- сроки проектирования, строительства и поэтапного введения дома в эксплуатацию;
- планируемое распределение максимального часового расхода газа;
- номер и дата выдачи технических условий.
Заявление о подключении с документами нужно подать в службу «Единого окна», через сайт ГРО, либо по почте. При направлении по почте нужно составить опись вложения.
Сроки заключения договора на подключение:
- в течение 5 рабочих дней направляется проект договора, если через ваш участок уже проходит сеть газораспределения;
- в течение 30 рабочих дней направляется проект договора, если вы относитесь ко второй или третьей категории заявителей и ГРО требуется согласовать с собственниками коммуникаций и земельных участков прокладку газопровода к вашему дому;
- в течение 15 рабочих дней направляется проект договора во всех иных случаях, в том числе для первой категории заявителей.
Срок заключения договора и подключения к газу зависит от категории заявителей . Всего в Постановлении № 1314 указано 3 категории:
- к первой категории относится большинство частных домов – максимальный расход газа не превышает 20 куб. м. в час, расстояние от оборудования до газопровода не более 200 метров, а рабочее давление не более 0.3 МПа;
- вторая категория – часовой расход газа до 500 куб.м., расстояние до газопровода до 500 метров (на селе) или 300 метров (в городе), рабочее давление не выше 0.6МПа;
- третья категория — часовой расход газа до 500 куб.м., расстояние до газопровода до 500 метров (на селе) или 300 метров (в городе), рабочее давление не выше 0.6МПа, но сеть проходит по двум или более муниципальным образованиям.
Специалисты ГРО сами отнесут вас к одной из категорий на основании представленных документов. На рассмотрение проекта договора вам дается не более 10 дней.





































