Проектирование
При создании маленького камина можно просто схематически набросать его изображение, но при работе с серьезным изделием, вам потребуется сделать точный рисунок того, каким оно должно получиться, подробный чертеж, в идеале, макет.
И как при любом проектировании, здесь вряд ли обойтись без компьютерных программ, но если вы уверены в своих силах, то можете положить груз чертежа на бумагу. Все формы, которые вы задумали и набросали на бумаге, нужно перенести на стену.

Теперь, по этой «настенной живописи» можно сделать макет, именно можно, а не нужно, так как это не сильно скажется на результате, но от существенного количества ошибок вы можете избавиться. Макет изготавливается из пенопласта. На нем вы может потренироваться, возможно, вам не понравятся формы или нужно будет изменить размер и т. п.
Важно учесть расположение проводов на той стене, у которой вы будете располагать камин, ведь если вы задаете их при проделывании отверстий, то грозит это очень серьезными последствиями. Также, горячий воздух, который будет производить электронный камин, нужно куда-то выводить, что тоже необходимо продумать заранее
Укажите расположение розеток на чертеже, так, вам будет намного проще спланировать формы будущего изделия и избежать неприятных ситуаций.
Печь-камин на дровах, которую можно купить в магазине
Наиболее популярны у дачников следующие модели угловых печей-каминов:
1. Печь-камин «Бавария» выполнена из 6-миллиметровой стали, изнутри футерована шамотным кирпичом. Мощность печи – 6 кВт, что позволяет обогреть домик площадью до 60 квадратных метров. Режим длительного горения у этой печи составляет 3-5 часов, печка оснащена огнеупорным стеклом, которое, благодаря системе чистого горения, не подвержено копоти, а также термоизолированной ручкой дверцы, что позволит вам не обжечься. Боковые стенки печи облицованы керамикой, это придает ей привлекательный внешний вид.
Угловая печь-камин «Баврия»
2. Печь-камин «Амур» оснащена панорамным стеклом с системой обдува – на нем не остается сажи и копоти. В верхней части расположена варочная панель. Модель выполнена из жаропрочной стали с футеровкой, мощность 9 кВт позволяет обогреть до 180 кубометров помещения, что при стандартных потолках соответствует площади в 60-80 квадратных метров. Печка облицована керамическими панелями, улучшающими теплоотдачу, даже при полном сгорании топлива — камни будут вас греть еще несколько часов!
Печь-камин «Амур»
3. Печь-камин «Нева» в целом похожа на «Амур», но ее мощность ниже – 6 кВт. Такую печь можно рекомендовать владельцам небольших домиков с площадью 50-60 квадратных метров. Все греющиеся поверхности печи покрыты жаропрочной краской, благодаря чему она долго сохраняет достойный внешний вид и не подвергается коррозии.
4. Печь-камин «Теплодар» угловой с мощностью 12 кВт предназначен для домов с площадью до 80 квадратных метров. Корпус сделан из нержавеющей стали и устойчив к прогоранию. Дверка оснащена жаропрочным стеклокерамическим окошком, позволяющим любоваться живым огнем. Печь вверху имеет варочную панель, дровницу в нижней части корпуса, а также зольник с удобным извлечением. Хороший выбор для ценителей надежности и красоты.
Печь-камин «Теплодар»
Все модели могут быть установлены на чистовой пол, отделанный негорючими материалами: металлическим листом, плиткой или керамогранитом. Их небольшой вес позволяет избежать реконструкции перекрытий и не требует устройства отдельного фундамента. Печи-камины этого класса можно установить на любом этаже дома.
Устанавливая печь-камин продумайте удобную доставку горючего материала, чтобы не таскать потом дровишки на второй этаж!
Рабочие материалы и инструменты
Для возведения углового камина своими руками необходимо закупить качественный керамический и шамотный кирпич
Внимание при выборе уделяют его цвету и структуре – эти характеристики должны быть однородны. Поверхности и углы – ровные. Многие специалисты проверяют изделия простукиванием по поверхности:
Многие специалисты проверяют изделия простукиванием по поверхности:
- Высокие тона – пережженные изделия
- Глухие тона – недостаточная температурная обработка
- Чистые тона – материал высокого качества
Не обойтись во время проведения работ без рабочих инструментов печника (мастерки, молотки, киянки, уровень, правило и т. д.). Также необходимы хорошо вымоченная и без примесей глина и просеянный речной песок – из них замешивается раствор в пропорции 2:1.
Выполнение облицовки
Облицовка фальш-камина декоративным камнем
Внешне кирпичная каминная конструкция выглядит неприметно. Чтобы придать сооружению красивый вид, можно:
- Оштукатурить поверхность. Штукатурный раствор накладывается через 14 дней – от влажного кирпича он может растрескаться после высыхания. Окрашивать штукатурный слой допускается огнестойкими красками.
- Выполнить облицовку. Красиво смотрится искусственный или природный камень. Способность материала переносить колебания температур и аккумулировать тепло обеспечит комфортный микроклимат. Для создания рисунка стоит вдохновиться красивым фото.
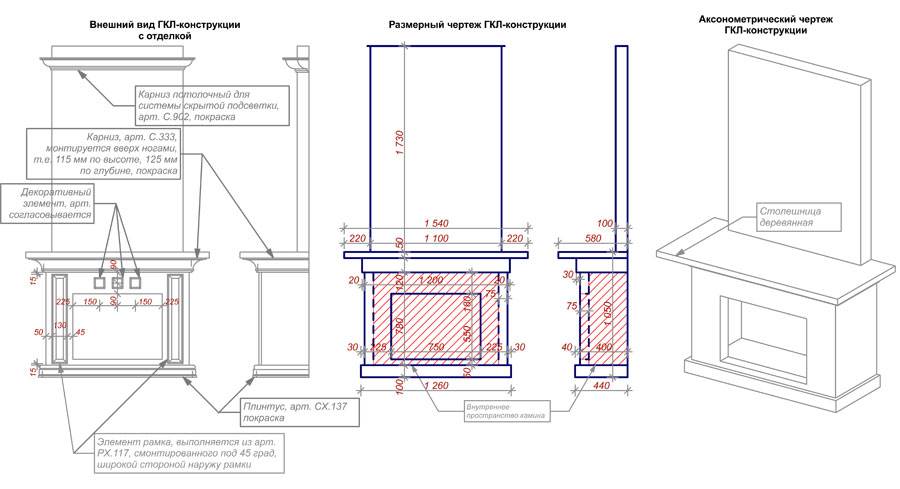
- Закрепить ГКЛ. Гипсокартонные листы фиксируются на металлический каркас, который приваривается к печи. Отделка покрывается лаком, ее легко мыть или очищать от пыли.
- Выложить изразцы. При помощи жаропрочной плитки легко создать красивый мотив или остановиться на лаконичной однотонной облицовке.
Угловые модели камина сочетают возможности интерьерного предмета, обогрева помещения и создания уютной атмосферы. При понимании принципа порядовки, знания технологии работ конструкцию можно сложить самому. В квартире остановитесь на фальш-моделях или устройствах с эффектом живого пламени.
Облицовка готового камина
Если есть желание, «фронтальную» часть камина вполне допустимо, оставить без отделки, тем более, если использовали приятный красный кирпич. Подумать об этом стоит еще во время кладки, если не предусматривается дальнейшая отделка, раствор лучше не класть впритык до самого края, оставляя характерные прорези между кирпичами. Сделать их, потом проблематично и грозит нарушением целостности кладки. В случае если все-таки решились на облицовку, делайте выбор на одном из этих материалов:
- Камень (любые вариации, хоть природный.)
- Плитка (лучше изразцовая).
- Гипсокартон, не забывайте, что он должен быть огне и температура стойким. К тому же для него потребуется и специальный каркас (только из металла).
- Классическая штукатурка.
Некоторые советы помогут вам сохранить первозданный вид камина. К примеру, если используете камни, плитку, лучше сразу покрыть лаком. Это позволит проще относиться к протирке от пыли
Кстати, еще один момент, если в качестве отделки вы выбрали штукатурку, запомните важное правило, оштукатуривать разрешается только после полной усадки. Иначе по всей плоскости пойдут огромные трещины, которые уже точно не прибавят грациозности
Сама по себе штукатурка, на первый взгляд простецкий способ отделки, однако с учетом вариации разных оттенков и дизайнерских стилей, можно создать более симпатичную и выразительную облицовку, даже лучше чем у природного камня. Штукатуркой можно наносить разнообразные орнаменты и узоры, чего невозможно сделать никаким другим отделочным материалом.
Облицовка камина
Угловой камин — украшение вашего дома. Он всегда будет в центре внимания. Поэтому необходимо, чтобы он не только исправно работал и дарил вам тепло, но и визуально был привлекателен. Для этого и существует отделка. Но её сейчас такое огромное количество, что становится трудно остановить свой выбор на чём-то одном. Давайте разберёмся со всеми этими видами.
Оштукатуривание

Оштукатуркнный и покрашенный угловой камин в интерьере
Из всех существующих вариантов облицовки штукатурка — самый простой. Придерживаясь следующих правил, у вас всё получится сделать самостоятельно:
- Отделку штукатуркой необходимо начинать только тогда, когда вся конструкция полностью высохла.
- Чтобы не пошли трещины, подождите ещё немного пока произойдёт усадка.
- Следует подготовить поверхность и углубить швы. Слои отделочного материала должны быть не более 1 сантиметра.
- Окрашивайте поверхность жаростойкими красками.
- Производите оштукатуривание только на тот материал, на который ложилась кирпичная кладка для лучшей сцепки элементов.
Плитка

Вот такой незатейливый рисунок получается с использованием плитки разных цветов
Советы по отделке плиткой:
- Проверяйте сертификаты качества на плитку до её приобретения.
- Проверьте наличие инструкции, где описываются режимы использования элементов. Часто современные материалы возможно использовать только при положительных температурах, а к морозу они не приспособлены. Это касается помещений с непостоянным отоплением или открытых веранд.
- Правильно подготовьте базу под плитку, чтобы её долговечность радовала вас.
Каменная облицовка
Весьма популярный вариант из-за своей экологичности и долговечности.

Облицовка камнем в одном стиле с интерьером
Как всё не испортить:
- Сделайте каменную раскладку сначала на полу, подгоните все размеры под ваш камин. И только после этого крепите её.
- Толщина всех деталей должна быть разной. Это придаст большую натуральность вашему камину.
- Обработайте поверхность восковым покрытием. Это даст возможность не задумываться о реставрации, в отличие от лакового покрытия, выполняющего исключительно декоративную функцию.
Мрамор
Этот вариант считается классикой жанра. Благодаря тому, что это магматическая порода, он прекрасно справляется с температурными перепадами. Он долговечен и экологически чистый. Имеет большой выбор цветов. Требует хорошей полировки.
Облицовка мрамором — достаточно сложный процесс, так как его трудно обрезать на нужные куски. Но укладка его такая же, как и у плитки. Отличается только клеящий состав. Для мрамора существуют специальные высокопрочные клеи.

Мраморная отделка камина придаёт ему особую грацию и богатый вид
Кирпич
Монтаж кирпичом может оказаться финансово затратным. Лучше такой вариант облицовки для тех, у кого уже есть старая конструкция, которую нужно немного реставрировать.
- Не используйте пустотелые элементы. Приобретайте материалы марки от М150. В идеале добавление шамота в кирпич для высоких температур.
- Верх камина не укладывайте кирпичом. Лучше используйте плиту.
- Вес такой конструкции будет очень большим, убедитесь в прочности фундамента.
Дерево
Такой вариант облицовки не безопасен при использовании открытого огня. Поэтому деревом лучше обшивать электрические камины или, так называемые, фальш-камины.

Использование только дерева при облицовке камина нерационально: часто его комбинируют с другими вариантами
- Преимущество такого варианта — это большой ценовой диапазон. Можно выбрать как дешёвые, так и дорогостоящие.
- Чтобы продлить срок эксплуатации деревянной облицовки, камин требует постоянного ухода. Обрабатывайте его специальным антисептическим средством.
- Такой вариант подходит только для помещений с положительной температурой.
- Цельная древесина более долговечна и эстетична.
Комбинирование

Комбинация дерева и плитки
Если вы сделаете облицовку своего камина не из одного материала, а из нескольких, то это может добавить большего колорита и красоты вашей конструкции. Только не нужно хаотично лепить туда всё, что под руку подвернётся. Сделайте это разумно, хорошо продумайте и представьте, как та или иная комбинация будет смотреться.
Интересные решения в дизайне интерьера
Многие производители предлагают широкий ассортимент угловых каминов.
Вы сможете выбрать именно тот вариант, который будет идеально смотреться в интерьере гостиной или в спальне. Как ранее говорилось, можно выбрать симметричный или асимметричный портал.
Если основной акцент в квартире будет уделяться камину, обратите внимание на симметричные конструкции. Такие агрегаты заметны с любого ракурса и обладают самыми лучшими свойствами
С функцией обогрева помещения они справляются на пять с плюсом.
Для зонирования комнаты подойдет асимметричный тип углового камина. Если ваша комната обладает большой площадью, данный портал будет идеально смотреться в любом интерьере. Стеклянные модели выполняют только роль декоративного предмета, окутывая помещение уютом и теплом.
При выборе камина обращайте внимание на его форму. Классическая форма является простым открытым порталом из красного кирпича
Данный вариант будет неплохо смотреться в деревянном доме или на даче.
Если вы владеете большой гостиной, обратите внимание на стиль ампир и барокко. В таких конструкциях множество завитушек, отделки и лепнины
Стиль рококо не такой большой, но в нем тоже есть колонны и позолоченные детали.
Для современных комнат подойдет стиль хай тек
Здесь нет лишних элементов и отделочных материалов, потому что все внимание уделяется порталу. Его необычная форма способна удивить каждого
Угловой портал в стиле модерн производится из современного материала. В нем сочетается стекло и термоустойчивый пластик. Портал в форме «П» и открытая топка напоминает классический вариант. Если в вашем доме преобладает современный интерьер, выбирайте такой тип камина.
Правильно подобранный стиль и форма камина, помогут сделать ваше жилище неповторимым и шикарным.
Зонирование
Художники-оформители не советуют поддаваться веяниям моды и копировать дизайнерские идеи без учета габаритов, расположения и других нюансов. Перед началом планировки и расстановки мебели продумывают каждую деталь. Есть несколько простых правил, которых советуют придерживаться мастера:
- Пусть в комнате будет естественного освещения. Для этого сносят лишние стены (кроме несущих).
- Если комнаты в квартире небольшие (12 кв м или 16 кв м), планировка кухни, совмещенной со столовой, станет правильным решением.
- Если вентиляционная система спланирована неправильным образом, запах еды будет распространяться в квартире.
Закладка фундамента
При монтаже основания под камин на нулевом этапе строительства здания эта работа особых сложностей не вызовет. Вы просто делаете манипуляции по единой схеме:
- выемка почвы на глубину промерзания;
- возведение опалубки;
- засыпка слоя песка и щебня;
- гидроизоляция полиэтиленом или рубероидом;
- армирование прутами из металла;
- заливка бетоном фундамента на высоту 2-х кирпичей до чистового пола;
- технологическая пауза – 20 дней.
Совсем другое дело, если камин решено возводить в уже достроенном доме. На этом этапе придется демонтировать напольное покрытие. Для этого нужно с помощью маркера сделать отметки требуемого размера, добавив отступ с каждой стороны от 15 до 20 см и болгаркой вырезать отверстие в полу. Доски уберите в сторону и выполните заглубление грунта. Дальнейшие действия аналогичны стандартной схеме по заливке основания.
Облицовка
Разумеется, кладка в этом случае должна быть идеально ровной.
Если же вид голого кирпича вас не устраивает, но тратиться особо на облицовку вы не хотите, камин можно оштукатурить.
При всей своей простоте и дешевизне штукатурное покрытие может быть весьма эффектным: можно придать ему любой цвет (колорирование), а также украсить поверхность оригинальным текстурным рисунком, который формируется при помощи специальных шпателей.
Самой дорогой, но и наиболее привлекательной, является облицовка изразцами, керамической плиткой или природным камнем (можно заменить искусственным).
Кладка камина своими руками
На этом этапе один из важных вопросов – выбор составляющих для раствора. Цемент не подходит, поскольку от высокой температуры он рассыпается, и такая конструкция будет ненадежной.
Процедура кладки камина
Подготовка связующего раствора
Поэтому для кладки используется глина. Но если она будет слишком жирной или недостаточно насыщенной, то результат вашей работы покроется трещинами.
Пропорция компонентов раствора аналогична цементному: на 1 часть глины добавляют 3 части песка.
Из-за индивидуальных свойств глины, полученная масса проверяется экспериментально. Шарик приготовленного вами раствора бросьте на твердую поверхность и посмотрите на результат:
- если масса рассыпалась — добавьте глины;
- приобрела вид лепешки – увеличьте количество песка;
- форма почти не изменилась – состав оптимален.
Выбор материала для камина
Качество выполненных работ зависит в основном от того, как выбрать кирпич для камина. Обычно считают, что используется только термостойкий материал. Это мнение ошибочно, поскольку и обычный красный кирпич хорошо справляется с жаром.
Его проверяют, слегка ударив молотком, при этом должен издаваться тонкий звон. Также удостоверьтесь в отсутствии дефектов и наличии правильной формы и ровных поверхностей без сколов. Лучше пересматривать каждый перед укладкой – это застрахует от возможных неприятностей. Такая процедура не будет слишком долгой, ведь в среднем вам понадобится до полутысячи штук на все элементы.
Процедура кладки
Кладка камина из кирпича определяется его назначением:
- Если он строится для обогрева помещения, то топка размещается наиболее низко для того, чтобы пол прогревался.
- Когда конструкция будет служить декоративным элементом помещения, то она приподнимается над полом.
- Для готовки должны быть предусмотрены дополнительные конструктивные особенности проектирования.
Кладка камина начинается с фундамента. Он выкладывается сплошными рядами, которые чередуются: первый ряд ложится вдоль, второй – поперек и т. д. Количество рядов может быть от 3 до 6, в зависимости от назначения камина. Остальная часть, включая дымоход, выкладывается по бокам целым кирпичом, а спереди и сзади — в полкирпича.
Особое внимание обратите на противопожарную безопасность. Для изоляции фундамента от основной части дома проложите два слоя рубероида, между ними – глину, предварительно замоченную на 2-3 дня. Далее выстраивается поддувало — полость, в которую осыпаются угли
Над ним устанавливается специальная решетка из чугуна, которая поддерживает топливо. Для доступа к поддувалу в его лицевой стороне замуровывается дверка
Далее выстраивается поддувало — полость, в которую осыпаются угли. Над ним устанавливается специальная решетка из чугуна, которая поддерживает топливо. Для доступа к поддувалу в его лицевой стороне замуровывается дверка.
При выполнении топливной камеры учтите следующее:
- Она делается в форме корыта, чтобы не выпадали дрова, пепел или угли. Для этого два ряда кирпича укладывается плашмя. После формируется полость топочной камеры.
- Внутренность обложите огнеупорным кирпичом, как на фото.
- На высоте 60 см от низа топки начинайте выполнять сужение внутреннего пространства. Уровень дымохода достигается с сужением до ширины в 12 см.
- Верх задней стенки топки выполните в виде косого уступа, он предназначен отражать тепло от стены и направлять его в помещение. Такая конфигурация позволяет прогреваться фронтальной стороне.
- При переходе к дымоходу, для управления тягой, установите задвижку – она препятствует выходу тепла наружу. При ее отсутствии камин плохо функционирует и проблематично разжигается.
Постоянно следите за углами, конструкцию связывайте, чтобы она была монолитной и ровной.
Пошаговая инструкция по кладке камина
Прежде всего, нужно обозначить на стене контуры будущего камина. Фундамент покрывается двойным слоем рубероида или толя для гидроизоляции. Сначала кирпичи необходимо укладывать насухо (без раствора) для тщательной и правильной подгонки. В процессе выкладывания подтопки с внутренней стороны обязательно применяется огнеупорный кирпич. Стесанные поверхности кирпича закрываются кладкой.
После выполнения подготовительных работ возводятся задняя и боковые стенки камина. Толщина стенок должна составлять порядка 20 см. Первыми укладываются угловые кирпичи. Горизонтальность кладки обязательно проверяется с помощью уровня. После этого выкладывается наружный ряд. Середина выкладывается в последнюю очередь.
Перед началом кладки огнеупорный кирпич нужно ополоснуть в воде, чтобы удалить скопившуюся пыль. Обычные кирпичи замачиваются в воде на 20-30 секунд. Это делается для того, чтобы удалить пузырьки воздуха. Швы нужно делать более тонкими, а потом аккуратно заполнять раствором. Излишек раствора, который образуется во внутритопочном пространстве, обязательно удаляется. В местах сужений и поворотов необходимо добиваться закругленной формы. На эффективность работы камина очень сильно влияет гладкость внутренних поверхностей
Ввиду этого при кладке необходимо уделить особое внимание тому, чтобы вовнутрь были направлены исключительно ровные грани кирпичей. Небольшие выбоины затираются ветошью, которая обязательно предварительно смачивается в глиняном растворе
Кладка выполняется последовательно. Каждый последующий ряд выкладывается исключительно после полного завершения кладки предыдущего.
Когда работа будет подходить к завершению, нужно построить дымовую трубу. Кладка рядов из красных кирпичей выполняется с использованием цементно-песчаного раствора
Очень важно, чтобы в трубу не попадали осадки, т.к. это негативно сказывается на эффективности работы камина
Для исключения такой вероятности используется колпак из оцинкованного железа или жестяной дымник.
Подготовка проекта и расчет размера
Любое строительство, пусть даже немасштабное, как камин, требует подготовки проекта.
На этой стадии должны быть учтены все нюансы будущего возведения и последующей эксплуатации постройки. Для составления проекта лучше обратиться к человеку, профессионально этим занимающемуся. Он проведет все необходимые расчеты и составит чертеж углового камина с учетом нужд заказчика.
Самостоятельное проектирование камина, в случае если эта область предметно не знакома, может в итоге привести к невозможности его использования.
Другой выход, кроме обращения к специалисту, это использование типового проекта. Благо в связи с популярностью использования в интерьере каминов, их можно найти в интернете превеликое множество. Однако и здесь подходить к выбору нужно крайне ответственно.
Другим основополагающим моментом подготовки к возведению камина является определение размеров будущего сооружения. Они зависят от размера помещения, где предполагается установка камина и, в отличие от проекта, могут быть рассчитаны без особых навыков.
Для начала нужно узнать площадь комнаты, обогрев которой камином предполагается, или сумму площадей нескольких комнат. Один процент от получившегося числа будет обозначать площадь топки, необходимой для обогрева помещения или помещений с определенной площадью.
В угловых каминах преобладают трапециевидные и треугольные топки, такая форма позволяет добиться наибольшей эффективности теплопередачи
Ширина фронтальной стороны для треугольной топки определяется следующим образом: из площади топки извлекается корень квадратный и результат умножается на 2.
Длина оставшихся двух сторон определяется как результат деления размера фронтальной стороны на 1,4. Высота топки углового камина, как правило, равняется ее ширине или немного ее превосходит. Определив данные параметры, можно подбирать наиболее подходящий проект углового камина из тех, что размещены на просторах сети.
Порядок работы
После создания чертежей камина с размерами и порядовкой кирпичей и приобретения нужных стройматериалов надо подготовить рабочие инструменты. Их список следующий:
- емкость для смешивания раствора, оптимально – объемом не мене 50 л, если имеется электрический миксер, то это еще лучше;
- сито и емкость для просеивания песка, если он с крупными примесями;
- мастерок для кладки раствора;
- строительный уровень длиной 1 – 2 м;
- рулетка, линейка, угольник;
- карандаш или маркер;
- молоток.
Перед началом стоит максимально удобно и функционально организовать рабочее место, подвести удлинители с розетками, освещение, защитить детали интерьера от возможной грязи.
Осуществить монтаж кирпичного камина своими руками по чертежам можно легко даже без опыта подобных строительных работ, если создать предварительный пошаговый план.
- Работы по укладке начинаются с монтажа фундамента. Он может быть ленточный из бетона, из блоков или кирпичей. Если основа заливная, то предварительно строится опалубка из деревянных щитов, в нее заливается жидкий бетонный раствор. Укладка фасада камина при этом начинается только после полного высыхания и усадки фундамента.
- На готовый фундамент происходит порядная раскладка кирпичей в соответствии с разработанными чертежами. Схема-порядовка содержит все этапы построения с компоновкой фрагментов. Кладку по рядам надо производить предельно аккуратно, соблюдая ровные швы, связку кирпичей и горизонтальный уровень. После формирования каждого ряда надо производить дополнительную проверку уровня и при необходимости корректировку, пока раствор не высох.
- После постройки портала камина следует взяться за монтаж дымохода. Металлическая вытяжная труба крепится к горизонтальной стене, дополнительно изолируется. Потом она обстраивается кирпичной стенкой по существующему чертежу.
- После того, как кирпичная основа портала и дымохода камина готова, можно приступить к декоративной отделке, обустройству столешницы, решетки, полок, заслонки и других элементов.
Построенный камин ни в коем случае нельзя сразу эксплуатировать. С момента постройки до полной растопки должно пройти не менее 2-4 недель. Перед этим для просушки печки и дымохода организуют частичную топку с небольшим количеством дров. Начинают с 2 кг сухих поленьев, через каждые 2 дня увеличивают массу на килограмм.
Как просто и безопасно сделать угловой камин своими руками?

Постройка коттеджа или загородного дома очень часто подразумевает возведение и камина. Как лучше сделать хороший камин только своими, без помощи, руками монтаж запланирован в кухонной, столовой или гостиной зоне.

Камин угловой дровяной нуждается в правильном соблюдении особенностей размещения. Тогда в конечном итоге он будет радовать домочадцев, правильно выполнять возложенные на него обязанности. Особенности размещения в частном доме:
- самым лучшим местом, чтобы построить хороший угловой и функциональный камин своими собственными руками считается стенка, которая расположена напротив окна. Возможно также установить камин около наружной поверхности, но в таком случае функция обогрева будет снижена;
- запрещено размещать возле окон, а также рядом возле быстро возгорающихся тканей, материалов;
- если необходимо будет использовать каминную зону для кулинарных целей, потребуется рассмотреть расположение в непосредственной близости к капитальной внутренней стене.
Оформление жилого пространства каминами угловой конструкции позволяет использовать все помещение на максимум, при этом получить значительную экономию финансовых растрат.

Изготовление углового камина
Если необходимо делать фундамент, то работу делают по схеме:
- Сначала в грунте роют яму 400-500 мм глубиной, шире камина на 100-120 мм;
- Дно углубления засыпают песком, толщиной 100-120 мм. Слой песка уплотняют, поливая водой и утрамбовывая;
- На песчаную подушку насыпают слой щебня, его делают такой же толщины, как и песчаный слой;
- На щебне собирают арматурный каркас;
- Обшивают стены деревянного дома асбестовыми листами;
Устанавливают опалубку из досок, если фундамент фигурный или полукруглый, то лучше его оградить металлическим листом.
Кладка
До начала кладки, выберите лучший кирпич для кладки топки (отлично, если есть шамотный кирпич).
После этого начинайте класть первый ряд.
Кладка производится так:
- От края основания, отступая на 5 см, выкладывают на сухую первый ряд кирпичей;
- С помощью деревянной планки и угольника, выравнивают этот ряд и выставляют углы под 90 градусов;
- Меряют рулеткой диагонали, отклонение не должно быть более 5 мм;
- После выравнивания кладут кирпичи на раствор.
Кладка углового камина из кирпича ведется согласно порядовкам в такой последовательности
При укладке камней на уголки и металлические листы перекрытий раствор использовать не нужно, достаточно заполнить боковые щели между кирпичами
Дальше ряды кладут так же – подгонка кладки на сухую, укладка кирпичей на раствор. Все ряды проверяется с помощью уровня и отвеса.
Есть простой способ, обеспечить правильность кладки. Когда будут выложены первые 2 ряда, угловые точки с помощью отвеса переносят на потолок и вбивают в этих местах гвозди. К ним привязывают бечевки с грузом, которые они будут служить маркерами.
Перекрытие топки и других частей камина делают из металлических уголков.
Верхний ряд кладут без раствора на металле. Своды арок делают с помощью деревянных шаблонов – кружал.
Как правильно сделать камин?
Чертежи для работы
В работе по оборудованию камина весьма важно правильно интерпретировать условные обозначения на схемах и планах. Тот, кто умеет читать чертежи и имеет базовые уверенные навыки в закладки кирпичных построек, скорее всего, осилит сооружение углового камина дома
Каждая пошаговая инструкция имеет свои особенности, поэтому до того, как начать строительные работы рекомендуется предварительно уделить время изучению схем.
Работа и пошаговая кладка
Отопительная конструкция предусматривает четкий порядок действий, которые необходимо соблюдать при работе. Если халатно относиться к не столь важным на первый взгляд моментам, в будущем отопительная система может попросту развалиться, так и не дав полноценно насладиться теплом и уютом. Пошаговая инструкция включает этапы, когда следует сделать перерыв в работе и дать возможность конструкции просохнуть, раствору закрепиться. Любая деталь важна при работе, в том числе и внимательность при закладке. Соблюдается строгая порядовка линий.
Сколько весит камин
Прежде чем строить угловой камин, нам необходимо рассчитать всю массу кирпичей, которые пойдут на его изготовление. Если мы устраиваем печное сооружение уже в готовом помещении, то мы должны учесть, что полностью готовый камин имеет достаточно большой вес. Некоторые экземпляры весят около тонны. Наверное, не стоит устраивать его высоко. Ведь такой груз не выдержат перекрытия между этажами. Вес небольшой модели составит около 400-500 кг.
Фото углового камина в деревянном доме:

Даже такая небольшая модель весит полтонны
Необходимые инструменты и материалы
После того как бумажная работа окончена, можно переходить к приобретению необходимых материалов. Для удобства разбейте всё на этапы:
- Укладка фундамента.
- Строительство портала, топочного отделения и дымоходной части.
- Декоративные работы.
Всё для фундамента
- Гидроизоляционный материал, например, полиэтилен или рубероид, для надёжной защиты от влаги из почвы.
- Среднефракционный щебень и песок, чтобы приготовить бетонный раствор.
- Для установки опалубки, в которую будет заливаться раствор бетона, необходимы доски или металлические листы. Если она будет временная и из дерева, то понадобится ещё и гравийно-песчаная смесь, чтобы закрыть промежутки между грунтом и застывшим фундаментом.
Армирующая сетка сечением 8/10 миллиметров
Стены и дымоход

Один из самых важных материалов в работе — шамотный кирпич
- Красный обожжённый кирпич для осуществления основной кладки и шамотный для топочного отделения и начальной части дымохода. Рассчитать необходимо точное количество кирпичей. Чаще всего для возведения угловых каминов нужно о 360 до 600 штук. Но лучше взять на 15 % больше для непредвиденных обстоятельств.
- Для кладки кирпича рекомендуется приобрести готовый сухой раствор. Это удобнее, чем искать нужную консистенцию песка, глины и цемента.
- Металлические уголки для того чтобы перекласть проёмы ниш дровяника (если он есть) и топочного отделения (40х40 мм или 50х50 мм).
- Деревянный или металлический шаблон под полукруглую нишу топки.
- Минимум 5 метров металлической трубы для дымохода.
- Задвижка из металла с удлинённой ручкой. Её можно приобрести в готовом виде или воспользоваться услугами сварщика, который сделает такую без проблем.
- В случае необходимости, можно приобрести топку из чугуна в готовом виде.
- Листы асбеста для изоляции стен.
- Отделочные материалы на усмотрение хозяина: керамическая плитка, декоративная штукатурка и т. д.
- Шибер для трубы из нержавейки.
Список инструментов для работы

Инструменты для строительства камина
Лучше подготовить весь необходимый инструмент заранее, чтобы потом не бегать и не искать, отвлекаясь от работы.
- Шлифовальная машинка.
- Молоток-кирка, чтобы раскалывать кирпичи.
- Большая кельма.
- Уровень строительный или лазерный.
- Отвес.
- Шнур для порядовки кладки.
- Киянка.
- Правило, чтобы выравнивать стяжки фундамента.
- Различные формы для воды и раствора.
- Уголок, чтобы углы кладки был перпендикулярными.
- Лопата для смешивания раствора.
- Декоративные элементы, если необходимо.




































