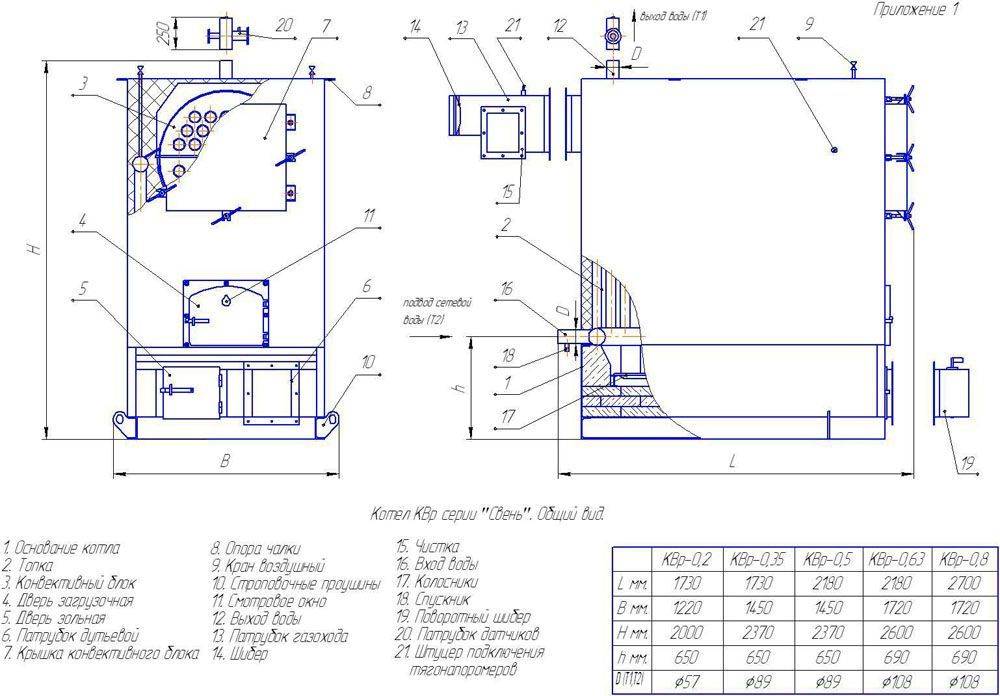
Устройство и принцип действия
Название рассматриваемого котла содержит в себе три составные части, каждая из которых обозначает соответствующий функционал. Во-первых, котёл использует твёрдое топливо. Во-вторых, это топливо горит долгое время (одной закладки обычно хватает на целый день, а то и больше). В-третьих, наличие одного водяного контура обеспечивает отопление, если же таких контуров два, то добавляется ещё и горячее водоснабжение (ГВС).
Таким образом, конструктивной особенностью данного котла является:
а) наличие одного или двух водяных контуров;
б) нагрев воды (или другого теплоносителя) происходит в результате горения не столько самого топлива, сколько выделяемого этим топливом газа.
В состав одноконтурного котла входят следующие компоненты:
- камера сгорания (топка);
- зольник, где аккумулируются продукты сгорания;
- теплообменник, представленный в виде водяной рубашки вокруг корпуса котла;
- дымоход, куда выводятся отработанные газы.
Такой котёл работает по следующей схеме. Топливо, сгорая в топке и выделяя тепловую энергию, нагревает теплообменник. Последний эту энергию аккумулирует и передаёт теплоносителю, который начинает циркулировать по контуру отопительной системы. Горячая вода поступает в нагревательные приборы (радиаторы), после чего остывает и возвращается в котёл. Цикл повторяется до тех пор, пока горят дрова (или другое топливо).
Лемакс Форвард (12,5 кВт) — твёрдотопливный котёл длительного горения с водяным контуром.
Двухконтурный котёл отличается от одноконтурного собрата тем, что включает в себя дополнительный теплообменник, который предназначен для подготовки горячей воды. Контур ГВС может быть подключён двумя способами и, соответственно, работать в двух режимах.
- Проточный режим. В этом случае дополнительный теплообменник встраивается в рубашку котла и нагревается за счёт тепловой энергии воды. Производительность такой системы ограничена и обычно не превышает 10 л/мин при температуре воды 40-45°C.
- Накопительный режим. Данная схема требует наличия накопительного бака (бойлера), который может быть устроен либо вокруг дымохода, либо вынесен наружу. В зависимости от выбранного варианта вода в бойлере будет нагреваться либо горячим воздухом, либо теплоносителем. Таким образом, потребитель получает горячую воду сразу после открытия крана, при этом температура этой воды может достигать 80°C.
При наличии только одной топочной камеры горение происходит по аналогии с обычной печкой. Несмотря на то, что конструкция тепловых агрегатов подобного типа постоянно совершенствуется, значительная часть тепла всё равно уходит наружу через дымоход, т.е. энергетический потенциал топлива используется не более, чем на 60-65%. Дрова прогорают довольно быстро, и о длительном горении можно забыть. Исключение составляет антрацит, но он достаточно дорог и не везде доступен.
В котлах с двумя камерами (точнее, это одна камера, разделённая на два отсека колосником) процесс сгорания разбивается на два этапа: в нижней топке тлеет топливо, а в верхней происходит дожигание выделяемых этим топливом газов (древесных, угольных, торфяных и т.д.). Чтобы обеспечить тление, а не горение топлива, приток кислорода в нижнюю камеру ограничивают путём ручного или автоматического регулирования притока воздуха через воздушную заслонку зольника. В зону дожига подаётся кислород (с помощью встроенного вентилятора либо за счёт естественной тяги), что вызывает воспламенение образовавшейся газовой смеси и выделение большого количества тепловой энергии. Благодаря такому технологическому процессу выброс полезного тепла наружу минимизируется, а КПД системы существенно увеличивается, достигая 90%. Котлы данного типа часто называют пиролизными.
1 Назначение котлов
Твердотопливные котлы являются оптимальным вариантом для обогрева помещений с различной площадью.
Газовое отопительное оборудование даже при имеющемся доступе к центральной магистрали требует значительных затрат и сил на подведение индивидуальной линии.
Электрические котлы более удобны в использовании. Но для обслуживания крупных объектов требуются модели со значительной мощностью, установка которых предполагает проведение трехфазного электропитания. Это сопровождается дополнительными затратами и необходимостью согласования проекта проводки. Также при аварийном отключении электричества дом останется без источника отопления.
Виды твердотопливных котлов длительного горения
Когда требуемые расчеты сделаны, агрегат для отопления частного дома выбирать легче
Теперь обращают внимание на иные параметры, раз мощность уже известна. Следующий аспект, который мы рассмотрим – виды котлов
Классификация по виду топлива:
Угольные котлы
Эти котлы, как правило, чугунные, так как температура сгорания горного сырья в разы больше дров – металлические стенки просто сгорят. Для лучшей теплоотдачи и длительного сохранения температуры, агрегат облицовывают кирпичом, превращая, таким образом, котел в печь или камин.
У твердотопливного котла, работающего на угле, есть недостатки: большой вес – в частном доме необходимо устраивать отдельную площадку с обязательным бетонированием от самого фундамента и окружением из негорючих материалов.

Постоянная сажа – от нее не избавиться, даже если владельцы отличаются патологической чистоплотностью. Проще установить котел в отдельное помещение. Требуется место для хранения угля, а учитывая, что для холодной зимы его требуется не меньше 9 тонн, то ангар должен быть обширным. И запасаться топливом придется заранее, если зимой подъезд к бункеру проблематичен.
Пеллетные котлы
Понятие уже знакомо многим пользователям твердотопливных агрегатов. Используются гранулы – пеллеты. Они производятся из торфа, древесных и сельскохозяйственных отходов. Соответствующая и цена. Топливо классифицируется по категориям как премиум – белые и стандарт – темные. Также есть вид, используемый только для промышленного производства.
Достоинства пеллет: гипоаллергенность – топливо изготавливается из экологически чистого продукта. Малая зольность – котел чистят не чаще 1 раза в месяц. Высокий КПД – до 86%, благодаря полному сгоранию. Удобство пользования – загрузка топлива происходит не чаще 1 раза в 3–4 дня или даже в неделю. Пеллеты безопасны, так как не содержат легковоспламеняющейся пыли или взрывчатых веществ.
Единственный недостаток – место для хранения должно отличаться сухостью, иначе отсыревшие пеллеты не дадут никакого эффекта – их нужно будет просушивать. Кроме того, сырье загниет.
Достоинства котлов, работающих на пеллетах: они компактны, устанавливаются в любое удобное место, не противоречащее правилам. Котлы выполняются из металла, легкие, мобильные. Оттого что чистка происходит редко, котлы располагают даже в жилых помещения без опаски за чистоту. Толстые стенки не дадут владельцам обжечься, несмотря на высокую температуру внутри камеры.
Основные критерии выбора твердотопливного котла
Выбор твердотопливного котла для обогрева помещений основывается на нескольких основных критериях.
- Вид топлива — если основным видом топлива будет выступать уголь, то в данном случае лучше приобретать котлы из высоколегированной стали. Если в качестве топлива будут использоваться дрова, то чугун будет идеальным вариантом.
- Мощность котла/полезный объем загрузочной камеры — данный критерий указывает на то, какое количество топлива можно загрузить в топку за один раз, и как часто это нужно будет делать. При этом учитывается и вес отопительного оборудования. К примеру, стальной котел при той же мощности, что и чугунный, для установки потребует меньше свободного пространства от всей площади помещения, на 19% в среднем.
- Вес котла и его стоимость — стальной котел меньше по весу, чем чугунный, примерно на 17%, поэтому и цена на установку и доставку значительно меньше.
- Экономичность — коэффициент полезного действия (КПД) чугунного котла меньше, чем у стального, хотя и остывает чугунный котел намного медленнее.
- Расходы на обслуживание и удобство эксплуатации — не менее важные критерии, от которых зависит не только тепловая отдача отопительного оборудования, но и физические и энергетические затраты на загрузку и чистку камер сгорания.
- Долговечность — условная цифра срока службы отопительного твердотопливного котла составляет около десяти лет. Но этот показатель больше связан с устареванием отопительной техники. чем со сроком ее эксплуатации. По факту, любой котел при правильном обслуживании может прослужить гораздо дольше.
Нельзя забывать и про такой немаловажный фактор в выборе твердотопливного котла, как опасность получения травмы или ожога. и степень безопасности. В большинстве случаев, стальные котлы отопления выпускаются только компаниями, занимающими лидирующее место на рынке отопительной техники. Все стальные котлы данных компаний имеют не один уровень защиты от ожогов и травм в процессе эксплуатации. Оборудование, применяемое при производстве стальных котлов очень дорогостоящее. поэтому и выпускаются они в небольших объемах, тогда как предложений по чугунным твердотопливным котлам более чем достаточно. Но и степень безопасности у них намного ниже.
В том, что твердотопливный котел может быть использован как основной источник тепла. нет сомнений. Несмотря на то, что такая отопительная техника требует постоянного обслуживания в процессе эксплуатации, она до недавнего времени была и остается самым альтернативным источником тепла для жителей отдаленных районов. А доступность и относительно недорогая цена на твердое топливо позволяет успешно использовать подобное отопительное оборудование в загородных домах.
5 Возведение своими руками

Для начала подготавливается проект, после чего делается согласно чертежам теплообменник, который должен в последующем монтироваться в печку. Собственно и печка возводится по его габаритам.
При проектировании нужно подумать, каким образом устройство будет располагаться в комнате. Место должно быть удобным для пользования и общедоступным.

После того как фундамент установлен, готовится кирпич для кладки. Он должен быть огнеупорным, без каких-либо сколов, повреждений и трещин. Также нужно предусмотреть в проекте месторасположение поддувала и камеры сгорания, дымоотвода, варочной поверхности. Последнюю можно и не монтировать, всё зависит от предпочтений хозяев дома.
Постройка происходит в определённой очерёдности:
- 1. Для начала подготавливается раствор. Он состоит из воды, глины и песка. Такую смесь можно уже в готовом виде приобрести в специализированных магазинах, но опытные мастера делают её самостоятельно.
- 2. Фундамент изолируется слоем плёнки или рубероида.
- 3. Поверх укладывается равномерный слой раствора и кладутся первые ряды кирпича.
- 4. Обустраивается топка и зольник. Точность кладки нужно проверить с помощью строительного уровня.
- 5. Дальше фиксируется дверка и делается свод. Также монтируется дымоход. Для стен дымохода нужно использовать полукруглые кирпичи.
- 6. На завершающем этапе происходит монтаж водяного контура. Подсоединяются трубы и батареи, ёмкость для теплового обмена. После этого заливается жидкость. Можно использовать обычную воду или подготовленные растворы.
Также при желании можно сделать декоративную отделку печи. Экономичное устройство печки можно сделать и самостоятельно. Такое устройство долговечное, имеет высокий коэффициент полезного действия, поэтому дом получит установку, независимую от централизованного отопления.
Как сделать твердотопливный котел длительного горения своими руками: чертежи, видео
Прежде чем выполнить установку твердотопливного котла длительного горения своими руками нужно подготовить основу. Для этого делается бетонная стяжка. Чтобы установка стояла ровно с помощью уровня необходимо сделать возвышенность из бетона. Монтировать оборудование можно в отдельном помещении, в котором необходимо оборудовать систему вентиляции.
Чертеж твердотопливной конструкции
К месту установки котла есть определенные требования:
- расстояние от корпуса конструкции до стены должно быть 2 метра;
- окружающие стены, потолок и пол должны быть устойчивыми к огню;
- высота потолков должна быть не менее 2,5 метра;
- ширина двери – не менее 80 см;
- по желанию можно поставить даже противопожарную дверь.
Важно обеспечить свободный доступ к котлу для регулярных осмотров и для очистки. Из топки необходимо периодически убирать шлак и золу
Нельзя рядом хранить воспламеняющиеся материалы.
Чертеж котла для сборки
Чтобы осуществить правильную установку нужно соблюдать противопожарную инструкцию и следовать технологии монтажа. Перед дверцей в топку можно расположить лист металла, если вдруг горячее топливо выпадет наружу. Все места стыков дымохода и дымоотвода следует пройти с герметиком. Тягу нужно проверить перед запуском отопительного агрегата.
Установка на железный лист
Некоторые умельцы делают такое сложное оборудование самостоятельно. Для этого необходимо найти чертежи и схемы в интернете, а также выбрать качественный материал.
Установка в котельной на фундамент
Как сделать котел можно посмотреть в этом видео:
Технология кладки
Прежде чем приступать к кладке печи своими руками, необходимо выбрать схему и нарисовать своими руками план-порядовку, лучше при этом воспользоваться готовыми проверенными схемами. Примером такой печи можно назвать печь Кузнецова с отопительным регистром, вмонтированным в дымовой канал с одной из сторон печи.
Для кладки своими руками подобной печи в частном доме понадобятся материалы:
- бетон для фундамента;
- кирпич красный полнотелый;
- кирпич шамотный огнеупорный;
- кладочный раствор или его компоненты: глина, чистый сухой песок, чистая вода;
- металлические трубы для выполнения теплообменника.
Также нужно купить готовые элементы: колосниковые решетка, дверцы, заслонки, шиберы, кровельные проходки. Цена на эти элементы обычно довольно высокая, поэтому нужно заранее просчитать, что именно необходимо.
Необходимый инструмент:
- мастерки и кельма;
- резиновый молоток;
- болгарка с кругом для кирпича;
- уровни, отвесы, бечевка;
- рулетка.
- Размечают положение будущей печи и заливают армированный прутком фундамент на 5 см ниже уровня чистового пола. Он не должен соприкасаться с фундаментом частного дома.
- После полного высыхания фундамента выкладывают по схеме-порядовке и чертежу два ряда кладки из красного полнотелого кирпича на обычный цементный кладочный раствор, их назначение — выровнять возможные неровности фундамента и заложить основание печи.
- Следующие ряды кладут на глиняный кладочный раствор по выбранной схеме, соблюдая перевязку, указанную на ней. Раствор делают из заранее вымоченной красной глины, карьерного песка и чистой холодной воды. Оптимальное соотношение глины и песка определяется опытным путем.
- Толщина швов между рядами кирпича — не более 5 мм. Чем меньше швы, тем однороднее структура печи и лучше теплоотдача. Расшивку проводят сразу по мере кладки.
- Дверцы устанавливают так: на предыдущий ряд кирпича кладут в месте установки дверки асбестовое полотно в виде полоски, на него ставят дверку. В отверстия в углах рамы заранее вставляют отожженную проволоку длиной не менее 40 см каждая. Эту проволоку закрепляют между рядами кладки. Если этого не сделать, рано или поздно раствор выкрошится, и дверка выпадет. Кладут несколько рядов, все время проверяя положение дверки по уровню. Поверх дверки также укладывают асбестовую полосу и сверху выкладывают кирпич.
- Топку футеруют шамотным кирпичом. Красный керамический для этих целей не годится — он со временем растрескается, и может произойти обрушение свода. На схемах шамотный кирпич обычно обозначен желтым цветом.
- Под варочную панель в кирпиче делают пазы на толщину плиты. Это делается для уменьшения теплопотерь и предотвращения задымления. Плиту кладут на раствор.
- Самодельный теплообменник в дымовой канал устанавливают в процессе кладки на этапе укладки ряда, через который выходит нижний штуцер. В топочную камеру его монтируют при укладке нижнего ряда топки. Между теплообменником и кирпичом должен быть зазор не менее 5-7 мм.
- В дымовом канале с теплообменником обязательно нужно предусмотреть прочистные дверки, так как на регистре будет оседать сажа, что ухудшит его нагрев. Количество дверок должно обеспечивать доступ для чистки к любой части теплообменника.
- Верхнюю часть дымового канала оснащают заслонкой или шибером. Сам дымоход может быть либо кирпичным, либо можно купить и поставить сендвич-дымоход. При этом нужно соблюдать правила прохода трубы через кровлю, а на кирпичных трубах делать распушку.
- После высыхания печи ее аккуратно протапливают, не перегревая, несколько раз. Проверяют тягу, устойчивость горения дров, отсутствие утечек дыма. После этого можно монтировать внешний отопительный контур и заливать воду в систему. Печь готова к эксплуатации.
Предлагаем ознакомиться Котел baxi не греет горячую воду
Виды котлов на дровах
Все котлы длительного горения на дровах подразделяются на два основных вида:
С верхним горением.
Пиролизные.
В отопительных котлах первого типа направление пламени и вывод газов ориентированы сверху вниз. Конструктивно это высокая топка с теплообменником посередине. При загрузке в нее закладывается большой объем дров, которые затем поджигаются сверху.
А дальше в результате медленного горения поленья постепенно опускаются на дно в виде небольшой горки золы. Воздушная тяга в таком котле обычно естественная. Но есть и модели с вентиляторами принудительной подкачки воздуха в топку.
Схема обычного твердотопливного и пиролизного котла
Отопительные дровяные котлы второго вида разделены внутри на две смежных камеры горения. В начальной происходит образование пиролизного газа из тлеющей древесины, а во вторичной его сжигание для получения тепла. Теплоноситель для батарей отопления дома здесь нагревается как раз во второй топке. КПД установок в обоих случаях достигает 90–100%.
Различные виды твердого топлива
Помимо дров многие модели рассматриваемых котлов также рассчитаны на сжигание торфа, древесных пеллет и даже угля. Однако класть в них, например, рубероид, тряпки в бензине или иной материал для быстрого розжига нельзя. Древесина должна медленно тлеть, а не гореть.
Многотопливные дровяные котлы отопления позволяют использовать разные типы горючего по мере необходимости. Но стоят они дороже. Печи длительного горения вообще оборудование дорогостоящее. Это их главный недостаток.
Самостоятельное изготовление
Сконструировать своими руками котел отопления достаточно сложно. Малейшая неточность, и он будет работать неправильно, что может привести к трагедии. Поэтому необходимо тщательно изучить технологию их изготовления и очень качественно выполнять все мероприятия.
Отопительные приборы шахтного вида
Самостоятельно создать можно шахтный или пиролизный котел. Первый функционирует не только на дровах, но и на угле, торфе или опилках. В его камеру сразу можно загрузить до 50 кг дров.

При полной загрузке камеры топливом и высокой мощности такой прибор непрерывно проработает до 5 часов, при самой малой мощности (15-20 кВт) – до суток. Его КПД – 75%. Мощность таких моделей можно регулировать с помощью автоматики.
Пиролизная модель
Желтый или бесцветный дровяной газ, выделяющийся под воздействием высокой температуры, является источником тепла в пиролизном котле. Для такого отопительного прибора можно использовать только полностью высушенные дрова, иначе он не запустится. Работать пиролизная конструкция может и на пеллетах. Автоматическая подача их в топку (с помощью специальных шнеков) станет дополнительным достоинством котла. Продолжительность работы модели подобного типа при полной загрузке – 12 часов.

Минусы – высокая стоимость (снизить ее можно, если изготовить его самостоятельно), энергозависимость (вентилятор работает с помощью электричества), большие размеры. Для изготовления такого прибора нужны:
- труба и лист из стали толщиной 4 мм;
- профтрубы, прутья металлические сечением 2 см;
- электродоты;
- вентилятор;
- кирпичи огнеупорные;
- автоматический регулятор температур;
- крепежи.

Предварительно составляют схему будущего котла со всеми расчетами. За основу берут наиболее удачную в этом плане конструкцию самодельного котла, разработанную инженером Беляевым. В нее вносят корректировки соответственно пожеланием владельца дома. Например, сделать отопление более эффективным можно за счет увеличения объема рубашки теплообменника.
Самодельные пиролизные приборы нужно устанавливать на специально оборудованные для них площадки из шамотного кирпича. После этого их подсоединяют к водяному контуру.

При первом, тестовом включении выясняют, не было ли допущено ошибок в конструкции котла. Если все было сделано правильно, то прибор сможет быстро переключиться в режим газогенератора. В помещении уже в течение получаса станет гораздо теплее.
Инструменты и материалы
Дровяной отопительный прибор – наиболее безопасная конструкция. Автономность его работы, простота эксплуатации, минимальная вероятность взрыва, возможность самостоятельного изготовления – вот основные его достоинства. Его минус – регулярность внесения топлива.

Самодельные дровяные модели котлов можно изготовить из следующих материалов и деталей:
- бочка из металла (объем – 200 л);
- стальной лист толщиной 3-5 мм (для создания топки);
- металлическая труба диаметром 20 мм и толщиной стенки от 3 мм;
- труба Г-образной формы (диаметр – 20 мм);
- колосник;
- дверцы для поддувала и топки.

Самодельные модели дровяных котлов изготавливаются при помощи газосварочного оборудования и болгарки.
Последовательность работ
Перед началом работ необходимо тщательно продумать схему прибора, приобрести все необходимые материалы и инструменты.
Вырезать 3 круга (диаметр каждого 57 см): это дно, верхняя крышка и перегородка между поддувалом и топкой. В двух из них сделать отверстие диаметром 20 мм.
Из листа стали вырезать полосу шириной 400 мм, длиной 3600 мм, вырезать в нем отверстия для дверцы топки, ниже него – для поддувала. Соединить лист сваркой в круг.

Приварить сверху круг с отверстием, снизу – без него. Между ними установить перегородку с колосником.
Сварить трубу и бочку между собой по принципу «один внутри другого». Снизу установить топку с поддувалом. Соединить все элементы с помощью сварки.
В верхней части бочки закрепить Г-образный отрезок трубы: он соединит емкость для нагрева и дымоход. Вода, нагреваясь в бочке, образует пар, который будет свободно выходить в дымоход, тем самым не давая расти давлению в котле.
Вверху и внизу установить патрубки для входа холодной воды и выхода горячей.
Навесить дверцы на топку и поддувало.
Установить конструкцию на фундамент из огнеупорного кирпича.
Такой прибор обогревает с помощью дров, пеллет или торфа, плотно уложенных внутри топки.
Даже простейшая модель дровяного котла требует осторожности и внимания при самостоятельном изготовлении
Определение с параметрами проекта
Точного определения данному понятию нет. Соответствующее оборудование появилось, как ответ на требования потребителей повысить уровень комфорта в процессе эксплуатации, увеличить выработку тепла в расчете на единицу использованных энергетических ресурсов.
Основным недостатком классических котлов является необходимость регулярного добавления топлива в топку. Сложности создают также следующие факторы:
- высокая интенсивность горения;
- сложность оперативной регулировки и контроля этого процесса;
- неполное использование тепла, которое удаляется вместе с дымом через систему вентиляции.
Для поддержания работы обычного котла лучше иметь рядом достаточный запас дров
Разные конструкции
Для решения отмеченных выше задач используют различные решения. Чтобы не закладывать часто новые порции топлива увеличивают размеры топки. Сделать процесс горения равномерным помогает размещение сверху прижимного устройства, дозированная подача воздуха.
Схема типичного котла этого класса
Создать чертежи твердотопливных котлов длительного горения своими руками будет проще после подробного изучения стандартной конструкции:
- В начальном положении прижимное устройство (10) находится в верхнем положении.
- Через дверцу (6) в топку загружают крупную партию дров.
- После поджигания происходит регулируемый механическим приводом (16) процесс горения.
- Свежий воздух подается нагнетателем через телескопическую полую внутри штангу. Он распределяется равномерно через прижимной диск (10).
- Подача кислорода сверху обеспечивает постепенное сгорание топлива, слоями.
- Золу после завершения цикла удаляют через нижнюю дверцу (13).
- Для поднятия диска (10) в верхнее положение используют лебедку (2) с электроприводом.
Недостатком данной конструкции является невозможность произвольной закладки дров в топку. Существенное преимущество – повышенная до 24 часов и более длительность одного рабочего цикла.
В следующей конструкции топливо можно подкладывать по мере необходимости. Здесь использована технология пиролиза. Она характерна дозированной подачей кислорода и низкой интенсивностью горения. Тлеющие дрова выделяют горючий газ. Он сгорает в дополнительной камере.
Пиролизный котел
Эта установка полноценно использует топливо. В продуктах сгорания содержится минимальное количество сажи. Сложной является оптимальная регулировка рабочих процессов.
Газовые и дизельные агрегаты лишены упомянутых недостатков по причине простоты дозирования соответствующих видов топлива. Подобный результат можно получить, если использовать специальным образом спрессованные гранулы из отходов деревообработки, шелухи семечек, иного горючего сырья.
Пеллетный котел
В данном варианте гранулы (пеллеты) засыпают в бункер, откуда они подаются шнековым механизмом в топку. Понятно, что такая конструкция позволяет при необходимости быстро увеличивать и уменьшать подачу топлива. Гибкое изменение производительности котла пригодится для оптимизации работы при изменении внешней температуры, подключении дополнительных потребителей. С гранулами не слишком сложно работать при транспортировке, хранении.
Теплообменник для подогрева воды
Повышают эффективность котлов с помощью сложных структур выходных узлов. В таких конструкциях повышается температура теплоносителя. Аналогичные функции выполняют полые стенки корпуса.
Чертежи твердотопливных котлов длительного горения своими руками
Прежде чем искать соответствующую документацию, необходимо точнее определиться с конструкцией. Предпочтительной является первая схема твердотопливного котла длительного горения, своими руками ее будет создать проще.
Принципиальная схема котла
Для отопления сравнительно небольшого частного дома с общей площадью 150-250 м. кв. достаточно будет следующих размеров:
Чертежи твердотопливных котлов длительного горения своими руками
При высоте чуть более 1,5 метра и ширине около 40 см не сложно будет найти подходящее место для установки. Но надо учитывать необходимость создания технологических проходов для обслуживания. Понадобится свободное пространство сверху для монтажа лебедки и другого оборудования.
Конструкторскую документацию можно создать без соблюдения стандартов
Для реализации частных проектов не обязательно соблюдению ГОСТов. Но чем подробнее получился чертеж твердотопливного котла длительного горения своими руками, тем проще будет исключить ошибки на ранних стадиях.
При удалении большого количества ржавчины перед окраской может понадобиться респиратор





































